Средна цена на имотите: €145,321 Средна цена на м²: €2,126
Промотирана
1 / 4












€131,607 / 257,401 лв.
Промотирана
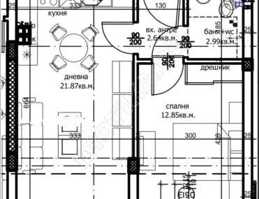
2-стаен, Васил Левски, Варна
63 m²
2-стаен
2024 г.
8 от 11
Уютен, светъл и функционален Двустаен апартамент. Жилището е с дневна, просторна спалня, баня и тоалет, тераса. Сградата е проектирана с внимание към детайла, съчетава изтънчена модерност и естествена хармония. Възможност за покупка на паркомясто.
В близост до УМБАЛ СВЕТА МАРИНА - Варна, хранителни магазини и офис учреждения, Технически университет Варна.
Тухлена масивна сграда с асансьор. Планирани са общо 58 двустайни и тристайни апартамента, всеки със светли и просторни помещения и тераси, от които можете да се насладите на красотата на природата около вас
Отлично разпределение! Големина на апартаментите! Зеленина и простор пред сградата! Разсрочено плащане! Луксозно изпълнение! Доказан инвеститор с 30 години опит!
Обади се сега и цитирай този код 605371
Контакт
Обади се
Запази
Статистика за имотите във Варна - Васил Левски
Средна цена на жилище
€175,406
Средна цена на квадратен метър на жилище
€2,136
Едностайни жилища
€94,985
Двустайни жилища
€145,175
Тристайни жилища
€205,996
Средна продължителност на пазара (дни)
35














































































































































