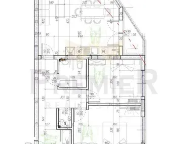
Многостаен апартамент в новострояща се сграда. Състои се от просторен дневен тракт с тераса, три спални, две санитарни помещения и килер. Въздух и простор от всички апартаменти. Оптимални разпределения и правилни форми на стаите. Отлични изложения - изцяло на ЮГ. Възможност за покупка на външно или подземно паркомясто.За продажба има разнообразие от двустайни, тристайни и многостайни апартаменти. В продажба са и подземни паркоместа.
Издаване по БДС стандарт: стени - гипсова мазилка, под - циментова замазка, висококачествена ПВЦ дограма. Луксозно изпълнени общи части с подови настилки гранитогрес или гранит, стени - декоративна мазилка.
кв. Възраждане
Модерно проектирана и луксозно изпълнявана сграда.
Предимства:
- модерен комплекс
- отлична инфраструктура
- фунционално разпределени площи
- удобни търговски площи
Обади се сега и цитирай този код 668967