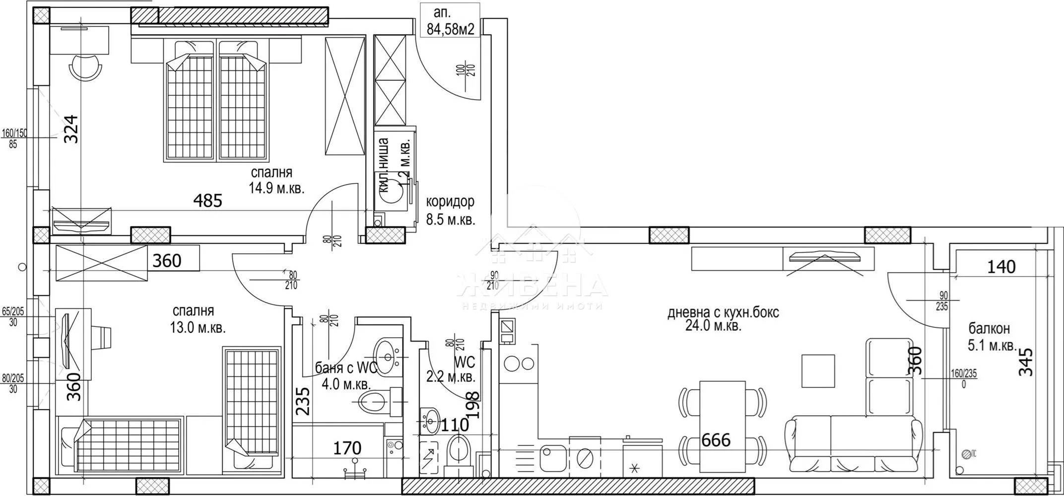
Агенция Живена предлага за продажба 3-стаен апартамент, стартиращ строеж на луксозен жилищен комплекс в района на Кайсиева градина, град Варна. Апартаментът е с обща площ - 99.25 кв.м, жилищна площ - 84.58 кв.м, изложение: изток/запад, разположен на 6-ти етаж от общо 9. Разпределен е по следния начин: дневна с кухненски бокс (24.0 кв.м), 2 спални (14.9 и 13 кв.м), баня с тоалетна (4 кв.м), тоалетна (2.2 кв.м), килер/ниша (1.2 кв.м), коридор (8.5 кв.м) и балкон (5.1 кв.м). Имотът ще се издава в степен на завършеност - по БДС: гипсова мазилка, циментова замазка, PVC дограма (5 или 6-камерна с двойни стъклопакети шир. 26 мм, 4 мм четири сезона и 4 мм бяло флоатно стъкло), ел. инсталация - завършена с ключове, контакти, оптичен кабел до апартамент; ВиК инсталация - на тапа; блиндирана външна врата с облечена декоративна каса. Общи части на сградата: декоративна мазилка, подови настилки и стъпала от гранитогрес или гранит, асансьори Orona (вкл. подземните гаражи). Комплексът се намира до булевард Цар Освободител в района на Метро, магазините за техника и обзавеждане. Предлагат се различен тип апартаменти - с една, две или три спални, разнообразни по площ и разпределения, функционални апартаменти, подходящи за млади семейства, просторни жилища с панорамни гледки. На партера са предвидени търговски обекти за удобство на живущите. Подземното ниво е изцяло отделено за гаражи и паркоместа, а в дворното пространство са обособени външни зони за паркиране и зелени площи. Има възможност за закупуване на паркомясто, на цени, започващи от 14 000 евро. Строежът започва през октомври 2025 г. и ще продължи 3 години; разрешение за ползване (Акт 16) - края на 2028 г. Предлагат се няколко схеми на разсрочено плащане:Вариант 1: (134 500 евро)20% при подписване на Предварителен договор20% при готова покривна плоча на четвърти етаж40% при подписан Акт 1420% при подписан Акт 15.Вариант 2: (131 026 евро)80% при подписване на ПД20% при подписан Акт 15.Вариант 3 (цени от вариант 1):30% при подписване на ПД70% с кредит при подписан Акт 14Вариант 4: (151 373 евро)20% при подписване на ПД80% при подписан Акт 15.Агенция ЖИВЕНА извършва необходимите проверки на имота, който сте избрали, организира всички етапи на сделката до нейното финализиране. Оказваме съдействие за отпускане на банков кредит. Оферта № 7474

Вход
Или
Все още нямаш профил?
Създай профил
1 / 9





















3-стаен, Индустриална зона Планова, Варна
€135,500 / 265,015 лв.
(€1,369 / 2,678 лв. / кв.м)
Характеристики
квадратура
брой стаи
година на строеж
етаж
Особености на имота
- С паркомясто
- С гараж
- Детски градини
- В близост до парк
Описание
Прочети още
Наблизо има
В непосредствена близост се намират:
Бар
AJ485м
Банкомат
476м
Ресторант
КОМИТИ545м
Аптека
525м
Паркинг
210м
Кафене
111м
Училища и детски градини
Детски градини
Начални
Основни
Средни
Име
Адрес
Ясла
Разстояние
Детска Градина №36 "Морска Звездица" (С Яслена Група)
с ясла
564м.
Ипотечен кредитен калкулатор
Варна Индустриална зона Планова Тристаен апартамент
