Нова жилищна сграда в центъра на гр. Варна – Окръжна болница, проектирана с фокус върху функционални разпределения, модерна визия и качество на изпълнение. Проектът е с надземно РЗП 1265.86 кв.м и съчетава най-търсеното на пазара: централна и комуникативна локация, но в същото време спокойна среда за живеене.
Апартаментите ще се предават по БДС, което дава свобода на бъдещите собственици да завършат интериора според вкус, бюджет и стил – подходящо както за лично ползване, така и за инвестиция/отдаване под наем.
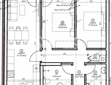
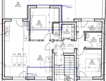
Тристаен апартамент разположен на етаж 6-ти с 2 спални и прекрасна слънчева дневна. Имотът е единствен на етажа, което го прави уникален.
Включено е паркомясто в цената.
|
Сградата се намира в района на Окръжна болница, Стоматологичен факултет, детски градини и училища – район с утвърдена инфраструктура и постоянен интерес. Локацията осигурява бърз достъп до ключови градски точки, търговски обекти и удобства, като едновременно с това позиционирането е на тихо място, което е реално предимство за ежедневен комфорт.
|
-
Етажност: 6 надземни етажа + 1
-
...мни паркоместа на ниво -1 и опция за дворно паркомясто.
Функционални жилища: разнообразие от разпределения, с добре организирани дневни зони и логични „мокри“ помещения.
-
Завършени общи части с практични и издръжливи материали:
-
...ция и минерални мазилки
-
Дограма: PVC с троен стъ...джи стъкло
-
Подготвена климатизация: положени тръбни пътища за климатици
|
-
Център + тиха улица – отлична комбинация за живеене и инвестиция
-
Без такса поддръжка – по-нисък месечен разход за собствениците
-
Подземен паркинг + опция за дворно паркомясто
-
Практични разпределения на помещенията.
-
Тераси и открити пространства, които реално се ползват – плюс към комфорта и стойността на имота.
-
Подходящо за инвестиция: локация и тип имоти с устойчиво търсене (живеене/наем), особено при налично паркиране.
|
Обади се сега и цитирай този код 683980