Нов ЕКСКЛУЗИВЕН проект в град Стара Загора!
Представяме Ви нова жилищна сграда, разположена в северната част на град Стара Загора – в непосредствена близост до Математическата гимназия. Сградата е с модерна визия и отлично местоположение, осигуряващо както тишина и спокойствие, така и бърз достъп до централните части на града.
Състои се от шест етажа и включва общо 12 апартамента, гаражи и обособени паркоместа за удобство на живущите.
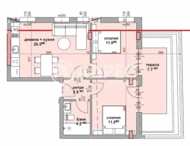
На Вашето внимание предлагаме ДВУСТАЕН апартамент с обща площ от 67 кв.м, който е функционално разпределен по следния начин:
- входно антре,
- всекидневна с кухненски бокс,
- самостоятелна спалня,
- баня с тоалетна,
- балкон.
Жилището предлага комфорт, съвременно разпределение и отлична локация – перфектен избор, както за живеене, така и за инвестиция.
Обади се СЕГА и цитирай този код: 662273
Сградата е разположена в един от най-предпочитаните и спокойни райони на град Стара Загора – в подножието на парк "Аязмото", предлагащ зеленина, чист въздух и възможности за отдих и разходки. Локацията съчетава природна среда с отлична градска инфраструктура. В непосредствена близост се намира Природо-математическата гимназия, както и множество удобства като магазини, спирки на градски транспорт, детски градини и училища. Перфектен избор за хора, търсещи комфорт и тишина в градска среда.
Нова жилищна сграда със съвременна и модерна визия, проектирана с внимание към детайла и удобството на бъдещите обитатели. Предлага комфортна среда за живеене, като едно от основните ѝ предимства е ограниченият брой апартаменти – само 12 на брой, което гарантира спокойствие, уединение и по-високо ниво на комфорт. Сградата разполага с гаражи и обособени паркоместа, осигуряващи удобство в натовареното градско ежедневие.
Отлична локация до парк и училища
Ограничен брой жилища
Сигурност и спокойствие
Възможност СЕГА да изберете етаж и предпочитано изложение
Високо качество на строителство
Обади се сега и цитирай този код 662273