Средна цена на имотите: €340,108 Средна цена на м²: €3,236
1 / 17





































€310,000 / 606,307 лв.
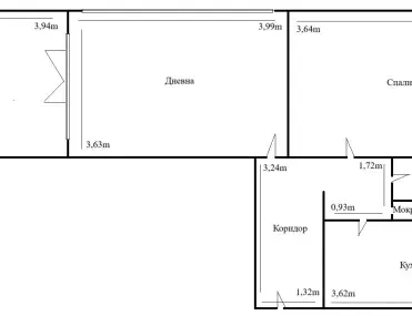
3-стаен, Гео Милев, София
83 m²
3-стаен
1970 г.
2 от 4
Продаваме слънчев, тристаен апартамент, с изложение Изток / Запад.
Жилището е в добро състояние и се продава напълно обзаведено.
Имотът е саниран, което в комбинация с изложението, го правят изключително топъл през зимните месеци.
Отоплението и топлата вода са от ТЕЦ.
Към апартамента има прилежащи таванско помещение и мазе.
Общите части на входа са поддържани в добро състояние.
Сградата е тухлено сторителство от 70-те години и се намира на ул. „Сирaк Скитник“, в близост до пазара и бъдещата метростанция.
Още наши оферти можете да намертие на www.universi.bg

Контакт
Обади се
Запази
Статистика за имотите в София - Гео Милев
Средна цена на жилище
€384,553
Средна цена на квадратен метър на жилище
€3,543
Двустайни жилища
€241,938
Тристайни жилища
€316,375
Средна продължителност на пазара (дни)
61



































































































































































































