Средна цена на имотите: €180,166 Средна цена на м²: €1,682
Статистика за имотите в Пловдив - Гладно поле
Средна цена на жилище
€160,846
Средна цена на квадратен метър на жилище
€1,669
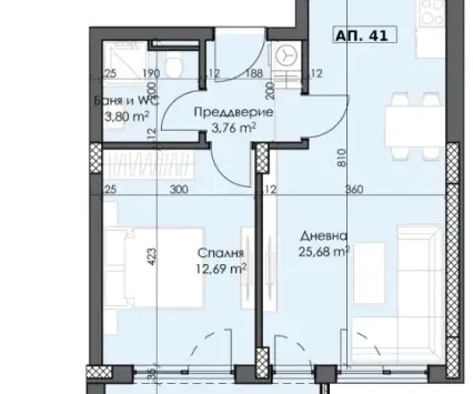
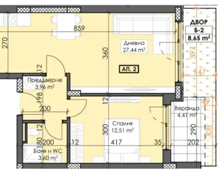
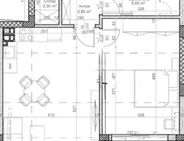
Двустайни жилища
€128,171
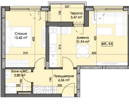
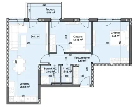
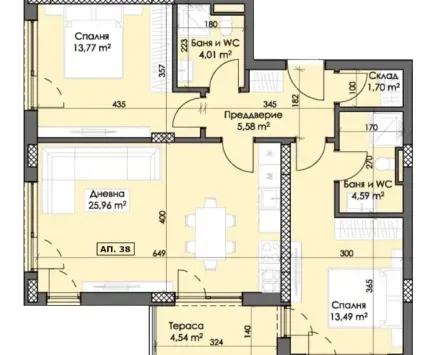
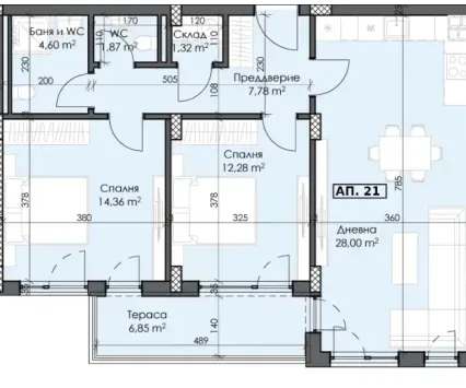
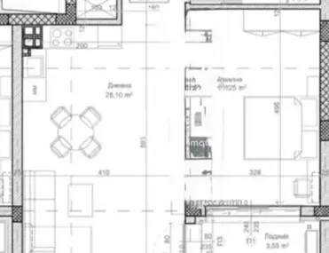
Тристайни жилища
€173,925
Средна продължителност на пазара (дни)
51


























































































































