10% ПЪРВОНАЧАЛНА ВНОСКА!!! НЕСКРИВАЕМА ГЛЕДКА!!! ПРЕД АКТ14!!! ВИСОКО КАЧЕСТВО!!!HOME2U ви представя южен двустаен апартамент в малка бутикова сграда решена на четири етажа в центъра на ж.к Малинова Долина.Сградата ще бъде завършена с висок клас материали, 6 камерна дограма „REHAU”, топлоизолация и шумоизолация между всеки апартамент, шумоизолация на всяка плоча.Към апартамента има паркомясто и склад за 20000 евро.Ако желаете да закупите имот в сградата, обадете се СЕГА и цитирайте следния код: 137455 !

Вход
Или
Все още нямаш профил?
Създай профил
1 / 6















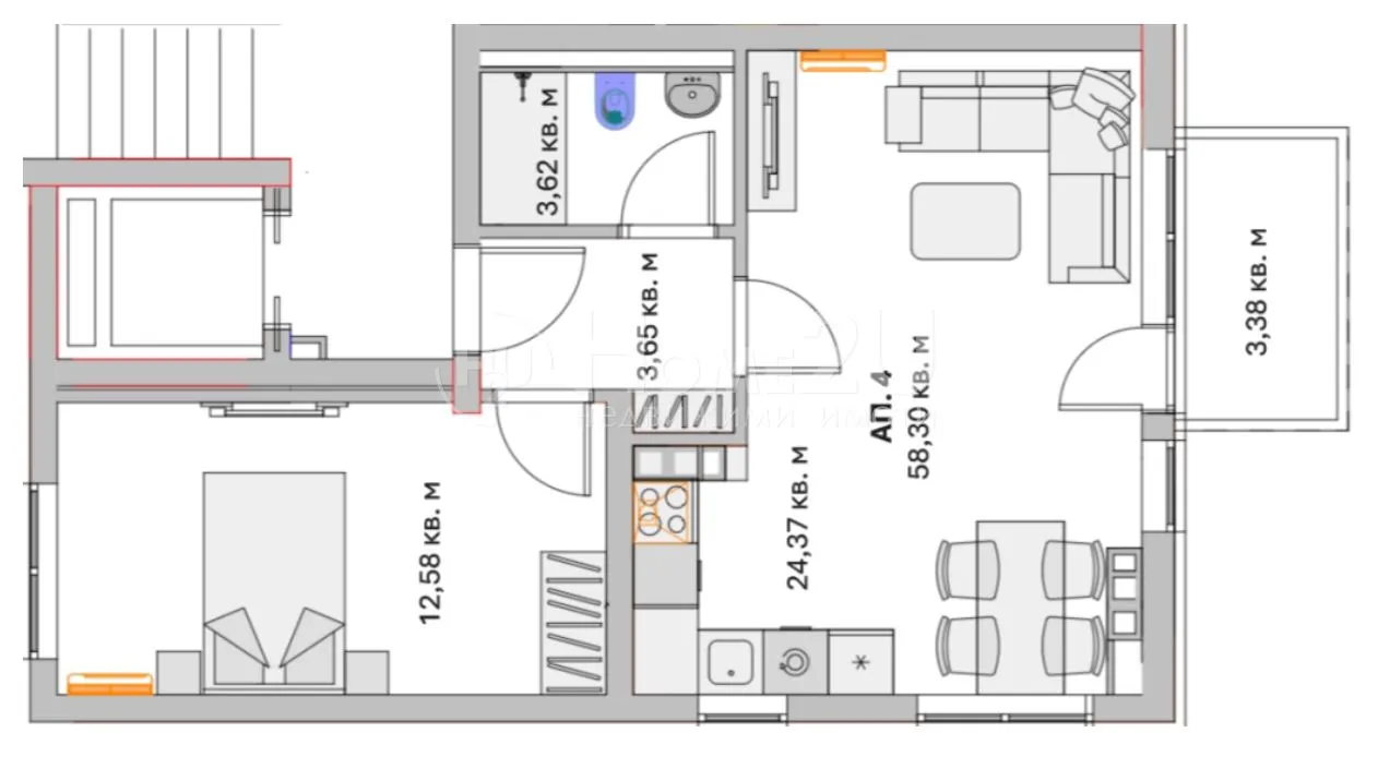
2-стаен, Малинова долина, София
€167,322 / 327,253 лв.
(€2,202 / 4,307 лв. / кв.м)
Характеристики
квадратура
брой стаи
година на строеж
етаж
Особености на имота
- Просторно жилище
- Популярен квартал
- С паркомясто
Описание
Прочети още
Наблизо има
В непосредствена близост се намират:
Транспорт
Най-близки спирки на градски транспорт до адреса:
Метро
Автобусни линии
Трамвайни линии
Училища и детски градини
Детски градини
Начални
Основни
Средни
Име
Адрес
Ясла
Разстояние
Ипотечен кредитен калкулатор
София Малинова долина Двустаен апартамент