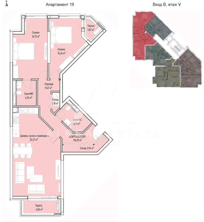
🏡Тристаен апартамент в модерна жилищна сграда с луксозна фасада !📍Локация: на една крачка разстояние до метростанция „Бизнес Парк“, магазини „Кауфланд“, „Фантастико“ и в близост до Камбаните📐 Основни характеристики:Обща площ: 149.01 кв.м.,Застроена площ: 116.39 кв.м. жилищеОбщи части: 32.62 кв.м.Етаж: 5 от 10Изложение: ЮС🏢 Разпределение:Две спалниДве бани с тоалетнаПросторна дневна с кухненски боксКоридорДве терасиДва склада🔥 Отопление:ТЕЦ🌳 Удобства и среда:✔ Просторни апартаменти с оптимални разпределения✔ Комплекс от затворен тип с 24 часа физическа охрана, видеонаблюдение и контролиран достъп.✔ Професионално управление без скрити такси✔ Луксозна фасада и модерна архитектура, извършени с висококачествени материали и довършителни работи✔ Бърз достъп до градски транспорт, училища, детски градини и магазини, Витоша и местност Камбаните🚗 Допълнително:✔ Възможност за покупка на паркомясто (на отделна цена)💰 Идеален избор за нов дом или инвестиция💰 Имот, който не просто предлага квадратни метри, а създава усещане за дом – място, където ще се чувствате наистина добре С отлична локация и разнообразие от апартаменти, комплексът е изпълнен по висок стандарт, с:Окачена вентилируема фасада с каменна вата;PVC дограма Deceuninck, петкамерна с троен стъклопакет;Асансьори ORONA;Газификация и енергиен сертификат клас В;Подземни гаражи, озеленени пространства и професионална поддръжка.🏗 Сградата е с Акт 14, а завършването се очаква в края на 2025г.📲Свържете се с нас за наличности и подробна информация по проекта!📌 Оферта № ЕА20175---------------------------------------------------------------Офис: гр. София, ж.к. Младост 1А, бл.563 (до входа за Метрото)mobile: +359 88 358 7000email: panayotova@andromeda.bg http://www.andromeda.bg/

Вход


Или
Все още нямаш профил?
Създай профил
1 / 3









3-стаен, Младост 4, София
€297,530 / 581,918 лв.
(€1,997 / 3,906 лв. / кв.м)
Характеристики
квадратура
брой стаи
година на строеж
етаж
Особености на имота
- Просторно жилище
- Саниран блок
- С паркомясто
- С гараж
- Детски градини
Описание
Прочети още
Наблизо има
В непосредствена близост се намират:
Банкомат
695м
Ресторант
674м
Аптека
Медея603м
Паркинг
90м
Кафене
Onda169м
Транспорт
Най-близки спирки на градски транспорт до адреса:
Метро
Автобусни линии
Трамвайни линии
Училища и детски градини
Детски градини
Начални
Основни
Средни
Име
Адрес
Ясла
Разстояние
Ипотечен кредитен калкулатор
София Младост 4 Тристаен апартамент