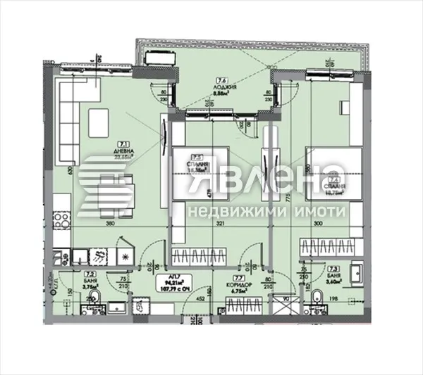
Явлена Фронт Офис предлага за продажба тристаен апартамент с площ от 108 кв.м (застроена площ 95 кв.м), разположен на втори етаж в новострояща се жилищна сграда. Сградата е разположена в сърцето на квартала и предлага идеален баланс между удобство и спокойствие, като на пешеходно разстояние се намират метростанция „Сливница“, автобусни спирки, училище, детска градина, болница, денонощна аптека и супермаркет. Жилищната сграда се отличава с модерен дизайн, качествено строителство и висока енергийна ефективност и предлага избор от двустайни и тристайни апартаменти с комфортни разпределения, както и възможност за покупка на гараж или паркомясто, включително за електромобили. За повече информация и огледи, свържете се с нас.(http://www.yavlena.com/162719) ID:Z-162719

Вход
Или
Все още нямаш профил?
Създай профил
1 / 2









3-стаен, Люлин - 6 до 10, София
€188,633 / 368,934 лв.
(€1,747 / 3,417 лв. / кв.м)
Характеристики
квадратура
брой стаи
етаж
Описание
Прочети още
Наблизо има
В непосредствена близост се намират:
Бар
SNAKE351м
Банкомат
Банка ДСК232м
Ресторант
Адашите192м
Аптека
606м
Кафене
Интрига582м
Училища и детски градини
Детски градини
Начални
Основни
Средни
Няма намерени детски градини
Ипотечен кредитен калкулатор
София Люлин - 6 до 10 Тристаен апартамент
