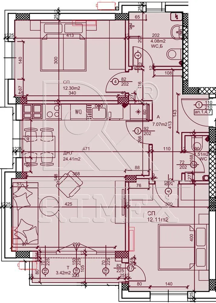
Facebook Pixel 3-стаен в Пловдив за 106,700€ - Zimoti
Logo