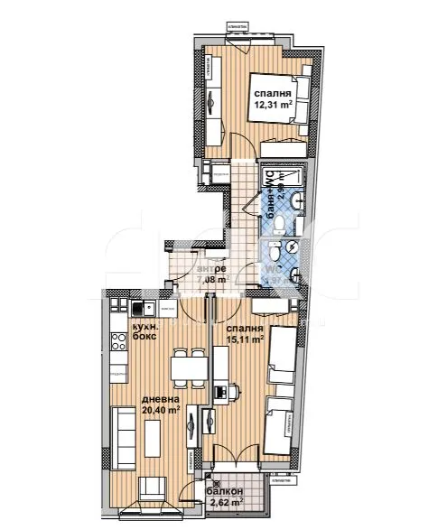
АКТ 16 - до средата на 2026гПредставяме ви просторен тристаен апартамент, разположен в кв. Надежда 4.Имотът се намира на 2-рия етаж от общо 7, което осигурява лесен достъп, комфорт и уютна атмосфера, съчетани с отлично разпределение на пространството.Жилището е с впечатляваща площ от 104 кв.м и предлага функционално и комфортно разпределение:две светли и уютни спални;баня с тоалетна, проектирана за максимално удобство;просторен хол с кухненски бокс, подходящ както за релакс, така и за семейни моменти;тераса, която осигурява естествена светлина и допълнително място за отдих.Сградата се отличава с модерна архитектура и ще бъде изпълнена с луксозни общи части, висококачествени материали и внимание към детайла.Очаква се завършване по най-високи стандарти, които гарантират комфорт, надеждност и престижна среда за живеене.Локацията в Надежда 4 предлага отлична инфраструктура, спокойствие и удобен достъп до транспорт, училища, търговски обекти и зелени площи.За повече информация и за организиране на оглед, не се колебайте да се свържете с нас. Ще се радваме да ви предоставим всички детайли и да уговорим удобен час за посещение на имота! Отговорен брокер - Йоан Мариянов 088 609 3992

Вход
Или
Все още нямаш профил?
Създай профил
1 / 3









3-стаен, Надежда, София
€205,000 / 400,945 лв.
(€1,971 / 3,855 лв. / кв.м)
Характеристики
квадратура
брой стаи
година на строеж
етаж
Особености на имота
- Популярен квартал
- Детски градини
Описание
Прочети още
Наблизо има
В непосредствена близост се намират:
Банкомат
Fibank485м
Ресторант
115м
Аптека
315м
Паркинг
264м
Кафене
271м
Транспорт
Най-близки спирки на градски транспорт до адреса:
Метро
Автобусни линии
Трамвайни линии
6
Училища и детски градини
Детски градини
Начални
Основни
Средни
Име
Адрес
Ясла
Разстояние
Ипотечен кредитен калкулатор
София Надежда Тристаен апартамент
