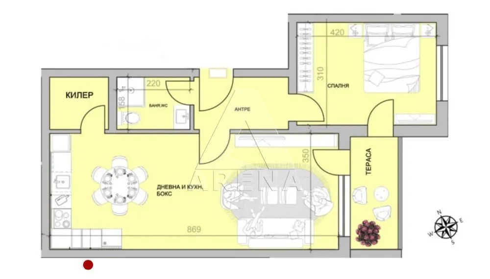
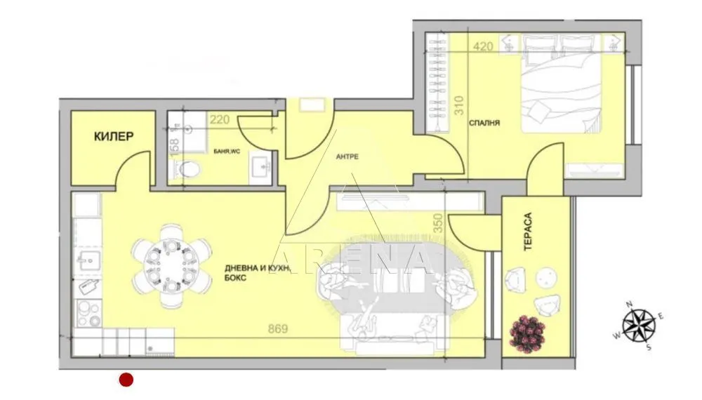
Предлагаме ви двустаен апартамент с АКТ 16 в кв. Смирненски. Жилището е на среден етаж, източно изложение и следното функционално разпредление: антре, хол с кухненски бокс, спалня, санитарен възел и тераса. Предлага се в степен на завършеност по БДС: шпакловка и замазка, ВиК до тапа, Ел. инсталация до ключ и входна блиндирана врата. Възможност за закупуване и на подземно парко място на допълнително договорена цена. Агенцията предлага съдействие за банково кредитиране на префренциални условия за своите клиенти.

Вход
Или
Все още нямаш профил?
Създай профил
1 / 6















2-стаен, Христо Смирненски, Пловдив
€98,400 / 192,454 лв.
(€1,200 / 2,347 лв. / кв.м)
Характеристики
квадратура
брой стаи
година на строеж
етаж
Особености на имота
- Просторно жилище
- Популярен квартал
- Детски градини
Описание
Прочети още
Наблизо има
В непосредствена близост се намират:
Бар
Escada Bar&Dinner329м
Банкомат
Postbank297м
Ресторант
Кафе-Ресторант "Finno"304м
Аптека
73м
Паркинг
715м
Кафене
14м
Училища и детски градини
Детски градини
Начални
Основни
Средни
Име
Адрес
Ясла
Разстояние
Ипотечен кредитен калкулатор
Пловдив Христо Смирненски Двустаен апартамент