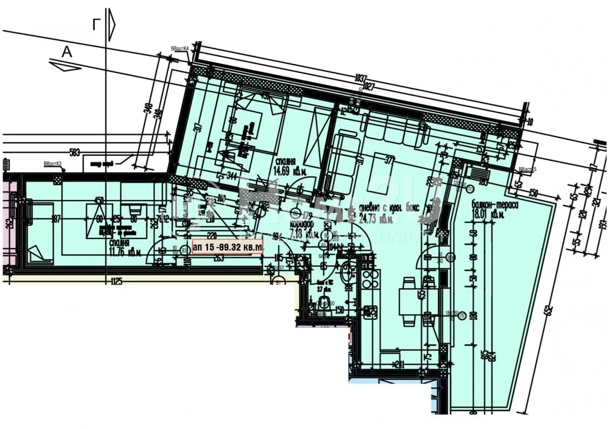
ДОКАЗАН ИНВЕСТИТОР! ТИШИНА И СПОКОЙСТВИЕ! ПРОСТОРНО ЖИЛИЩЕ!Предлагаме на Вашето внимание чудесен 3-стаен апартамент в нов проект на доказана строителна компания със завършени проекти в град Варна и страната.Жилището е разположен на четвърти етаж в сградата и се състои от просторна дневна 25 кв.м. с излаз на просторна тераса 18 кв.м., две спални по 15 и 12 кв.м., общо санитарно помещение (баня с тоалет), както и просторно антре.Проекта е с разрешение за строеж от началото на 2024 година, а завършването по план се очаква да е в началото на 2026-та. Сградата ще бъде завършена по най-високите стандарти.Близостта на сградата до плажа и парка на квартал Аспарухово, както и всички учебни заведения, магазини и спирки на градския транспорт, правят закупуването на този имот перфектен нов дом или изключителна инвестиция.В сградата все още има възможност за закупуване на гаражи и паркоместа.За повече информация се обадете с СЕГА и цитирайте Имот № 117446

Вход
Или
Все още нямаш профил?
Създай профил
1 / 2









3-стаен, Аспарухово, Варна
€124,950 / 244,381 лв.
(€1,250 / 2,445 лв. / кв.м)
Характеристики
квадратура
брой стаи
година на строеж
етаж
Описание
Прочети още
Наблизо има
В непосредствена близост се намират:
Паркинг
729м
Училища и детски градини
Детски градини
Начални
Основни
Средни
Няма намерени детски градини
Ипотечен кредитен калкулатор
Варна Аспарухово Тристаен апартамент