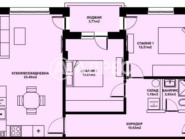
Агенция Адрес предлага на Вашето внимание тристаен апартамент в новострояща сградав с. Изгрев за продаажба. Апартаментът е с площ от 81.42 кв.м. ( 76.90 кв.м. чиста площ и 4.52 кв.м. общи части) и се намира на трети жилищен етаж в триетажна сграда. Състои се от коридор, две спални, всекидневна с кухня, баня с тоалетна и лоджия. Местоположението на имота е отлично, тъй като се намира на тихо и спокойно място недалеч от училища, детски градини, магазини и много други. Към апартамента принадлежи и мазе. Допълнително може да се закупи паркомясто. Очакван период за въвеждане в експлоатация 2027г. Обади се сега и цитирай този код Z-674218

Вход
Или
Все още нямаш профил?
Създай профил
1 / 1









3-стаен, Широк център - север, Благоевград
€77,575 / 151,724 лв.
(€953 / 1,864 лв. / кв.м)
Характеристики
квадратура
брой стаи
година на строеж
етаж
Особености на имота
- Популярен квартал
- С паркомясто
- Детски градини
Описание
Прочети още
Наблизо има
В непосредствена близост се намират:
Бар
Bar Billiard229м
Банкомат
Алианц27м
Ресторант
The House of the Food408м
Аптека
Санита223м
Паркинг
170м
Кафене
458м
Училища и детски градини
Детски градини
Начални
Основни
Средни
Име
Адрес
Ясла
Разстояние
ЦДГ № 2 Света Богородица
без ясла
0м.
Ипотечен кредитен калкулатор
Благоевград Широк център - север Тристаен апартамент
