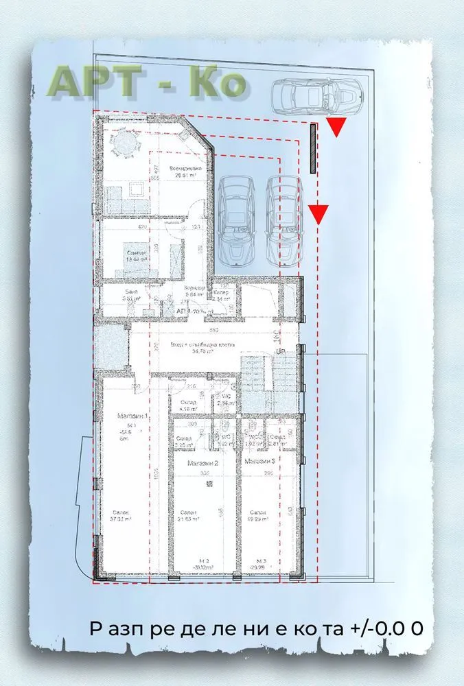
КОД–4073; Тристаен апартамент за продажба в новострояща се сграда в гр. Перник- Център. Цена с включен ДДС. Предлагаме за продажба жилище в новоизграждаща се сграда, разположена в централната част на гр. Перник. Сградата е проектирана съобразно най-съвременните изисквания за комфорт, функционалност и качество на материалите, като гарантира висок стандарт на обитаване и естетика. Апартаментът е на четвърти етаж със РЗП 114,16 м2. Чиста площ от 93,81 м2, разпределени както следва: кухня-трапезария- дневна и килер в отворен план, спалня, кабинет и две бани със санитарни възли. Локацията е отлична -в близост до СОУ и ОДЗ, както и до вече обитаеми нови сгради. Възможна е покупка на ПМ външно, покрито или в подземен паркинг. Строителството е гарантирано от доказан във времето строител и инвеститор, както за Перник, така и за различни курортни центрове в страната.Контакт: Красимира Динкова - 0898471253

Вход
Или
Все още нямаш профил?
Създай профил
1 / 8



















3-стаен, Перник, Югозападна България
€188,000 / 367,696 лв.
(€1,635 / 3,198 лв. / кв.м)
Характеристики
квадратура
брой стаи
година на строеж
етаж
Описание
Прочети още
Училища и детски градини
Детски градини
Начални
Основни
Средни
Няма намерени детски градини
