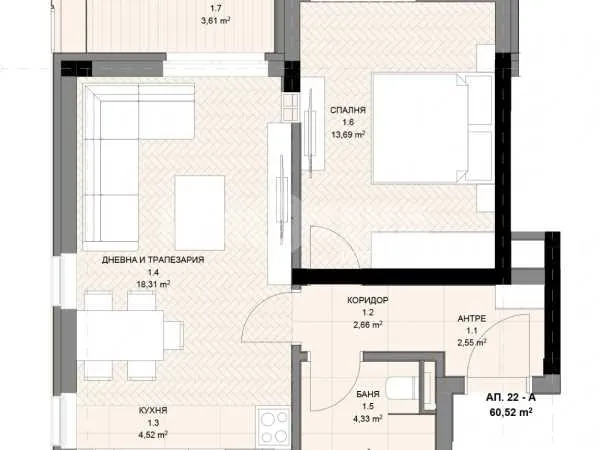
Двустаен апартамент със следното разпределение: коридор, дневна с кухненски бокс, спалня, баня с тоалетна и тераса. На 50м от метростанция Мизия Atrium Residence е елегантна и модерна жилищна сграда, разположена в сърцето на един от най-бързо развиващите се квартали в София – Овча Купел. Проектирана от архитектурното студио CAST, тя впечатлява със своята стилна фасада, просторни апартаменти и изключителни гледки към Витоша. Концепцията на сградата е ориентирана към комфорта и уюта, като предлага разнообразие от апартаменти – двустайни, тристайни и многостайни апартаменти, както и уникални мезонети с двойна височина на таваните. Сградата е разположена на 50 метра от метростанция „Мизия“, което гарантира бърз и удобен достъп до центъра на София и основни транспортни връзки. В близост се намират също: Нов български университет, магазини, училища и парк „Кукуряк“, който предлага зелени пространства за отдих и спорт. Това прави Atrium Residence перфектен избор както за семейства, така и за млади професионалисти, които търсят баланса между динамичния градски живот и спокойствието на природата. Освен модерния дизайн и удобното местоположение, Atrium Residence е изградена с висококачествени материали и съвременни технологии, които гарантират енергийна ефективност и комфорт. Вентилируемата фасада, алуминиевата дограма с двукамерен стъклопакет и внимателно подбраните довършителни материали допринасят за усещането за лукс и уют. Жилищната среда е замислена така, че да отговаря на високите изисквания на съвременния градски жител – сигурност, естетика и функционалност в едно. Atrium Residence е не просто място за живеене, а дом, в който комфортът и стилът се срещат, за да създадат едно по-добро качество на живот. Локация! Цена! Разпределение! Обади се сега и цитирай този код Z-671632

Вход
Или
Все още нямаш профил?
Създай профил
1 / 5













2-стаен, Овча Купел, София
€161,082 / 315,049 лв.
(€2,335 / 4,567 лв. / кв.м)
Характеристики
квадратура
брой стаи
година на строеж
Особености на имота
- Южно изложение
- Популярен квартал
- Детски градини
Описание
Прочети още
Наблизо има
В непосредствена близост се намират:
Бар
Marin Marinov692м
Банкомат
Fibank575м
Ресторант
Терес713м
Аптека
ФармаСтор417м
Транспорт
Най-близки спирки на градски транспорт до адреса:
Метро
Автобусни линии
Трамвайни линии
Училища и детски градини
Детски градини
Начални
Основни
Средни
Име
Адрес
Ясла
Разстояние
Ипотечен кредитен калкулатор
София Овча Купел Двустаен апартамент