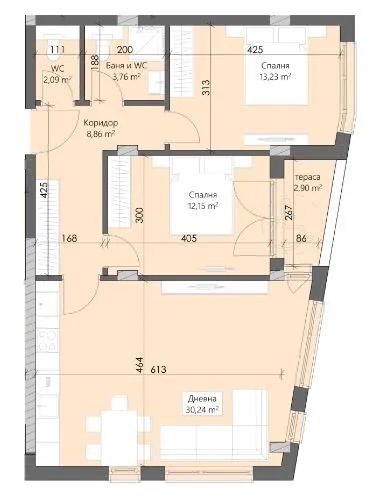
Агенция за недвижими имоти Даймънд Хоум Ви представя тристаен апартамент в новостроящ се жилищен комплекс. Намира се в кв. Кършияка на удобно място, в близост до центъра на града, с добра инфраструктура и лесен достъп до основни пътища и обществен транспорт.Апартаментът разполага с просторна и функционална площ от 104.32 кв.м. Включва дневна с трапезария, две спални, баня с wc, отделно wc, коридор и тераса.Жилищният комплекс ще разполага с вътрешен двор със зелени площи, детска площадка и места за отдих, има и подземни гаражи, които осигуряват сигурно паркиране на жителите на комплекса.Мисията ни е да създадем доверие във Вас, като Ви предоставяме най-високо качество на обслужване!Разполагаме с над 1000 имота!Услугите които, предлагаме:- Консултация от старши брокер- Съдействие с кредитен консултант относно финансирането ви- Договаряне на възможно най-изгодни условия за вас- Оформление на цялата документация по сделката- Агенцията работи с утвърден юрист в бранша- Управление на всякакъв вид имоти- Безплатна консултация с наш брокерЗа информация или оглед относно този или друг имот не се колебайте и се свържете с нас!

Вход
Или
Все още нямаш профил?
Създай профил
1 / 4











3-стаен, Кършияка, Пловдив
€140,980 / 275,733 лв.
(€1,356 / 2,652 лв. / кв.м)
Характеристики
квадратура
брой стаи
година на строеж
Особености на имота
- Популярен квартал
- С гараж
- Детски градини
Описание
Прочети още
Наблизо има
В непосредствена близост се намират:
Банкомат
Unicredit516м
Ресторант
Алианс141м
Аптека
36.6224м
Паркинг
142м
Кафене
E'memento440м
Училища и детски градини
Детски градини
Начални
Основни
Средни
Име
Адрес
Ясла
Разстояние
Ипотечен кредитен калкулатор
Пловдив Кършияка Тристаен апартамент
