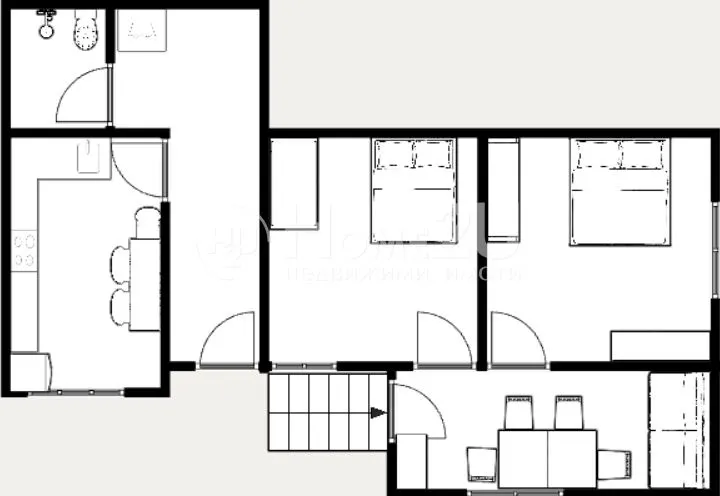
Представяме ви двуетажна къща в село Богданица,община Садово,област Пловдив. Къщата е тухлена и е с плоча. Изцяло сменена дограма!Имотът има следното разпределение - на първия етаж има предверие хол и спалня, а на - втория етаж има две спални и предверие.Точно до къщата са лятна кухня, баня с тоалетна и мокро помещение. Къщата се намира в просторен двор с големина от 1319 кв, като в него има и двоен гараж с канал за коли.! Локацията позволява спокойствие и тишина, но близостта до главните пътни артерии позволява бързо предвижване до големите градове, магистралата и Родопите! Селото се намира на 30 мин от Пловдив и на 20 мин от АсеновградЗа ваше улеснение прилагаме схема с разпределението на имота. Не пропускайте тази невероятна възможност! Обадете се сега и цитирайте следния код: 114203

Вход
Или
Все още нямаш профил?
Създай профил
1 / 11

























Къща, Садово, Южна България
€43,500 / 85,079 лв.
(€418 / 818 лв. / кв.м)
Характеристики
квадратура
година на строеж
Описание
Прочети още
Училища и детски градини
Детски градини
Начални
Основни
Средни
Няма намерени детски градини