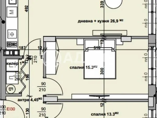
ТРИСТАЕН апартамент в новострояща се сграда в кв. „Самара“ в Стара Загора АДРЕС Ви предложи ТРИСТАЕН апартамент в модерна жилищна кооперация, разположена в тихата част на кв. „Самара “ – един от най-предпочитаните и бързоразвиващи се райони на Стара Загора. Имотът има следните характеристики : Площ: 92 кв. м Разпределение: просторно антре светла и просторна всекидневна с кухненски бокс две самостоятелни спални баня с тоалетна тераса – идеална за сутрешно кафе или отдих Степен на завършеност – издава се по БДС: стени и тавани – шпакловка под – циментова замазка електрическа инсталация – до ключ и фасунга PVC дограма – енергоспестяваща Обади се СЕГА и цитирай този код: Z-666828 ТРИСТАЕН апартамент в град Стара Загора, кв. „Самара“: тиха и спокойна среда бърз достъп до центъра на града в близост до спирки на градски транспорт, училища, детски градини супермаркети, търговски обекти и зелени площи модерна архитектура и елегантна визия луксозно завършени общи части асансьор с безшумен механизъм контролиран достъп възможност за гараж или паркомясто компактен, функционален и светъл апартамент подходящ за собствено ползване или инвестиция нова, модерна сграда с дългосрочна стойност уютен квартал с отлична инфраструктура Обади се сега и цитирай този код 666828

Вход
Или
Все още нямаш профил?
Създай профил
1 / 2









3-стаен, Бедечка, Стара Загора
€102,000 / 199,495 лв.
(€1,109 / 2,169 лв. / кв.м)
Характеристики
квадратура
брой стаи
година на строеж
Особености на имота
- С гараж
- С паркомясто
- Детски градини
- В близост до парк
Описание
Прочети още
Наблизо има
В непосредствена близост се намират:
Бар
Бар "Лас Вегас"848м
Банкомат
Първа Инвестиционна Банка772м
Ресторант
Механа "Стимул"632м
Аптека
632м
Кафене
Класик560м
Училища и детски градини
Детски градини
Начални
Основни
Средни
Име
Адрес
Ясла
Разстояние
Ипотечен кредитен калкулатор
Стара Загора Бедечка Тристаен апартамент
