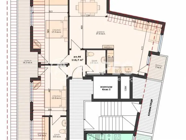
Facebook Pixel 3-стаен във Варна за 190,000€ - Zimoti
Logo