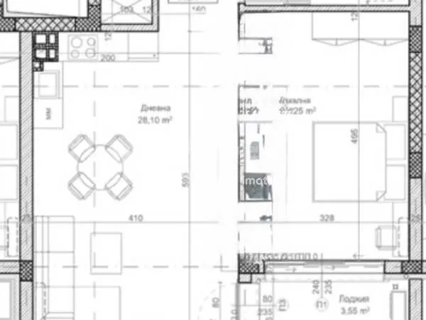
Facebook Pixel 2-стаен в Пловдив за 135,915€ - Zimoti
Logo