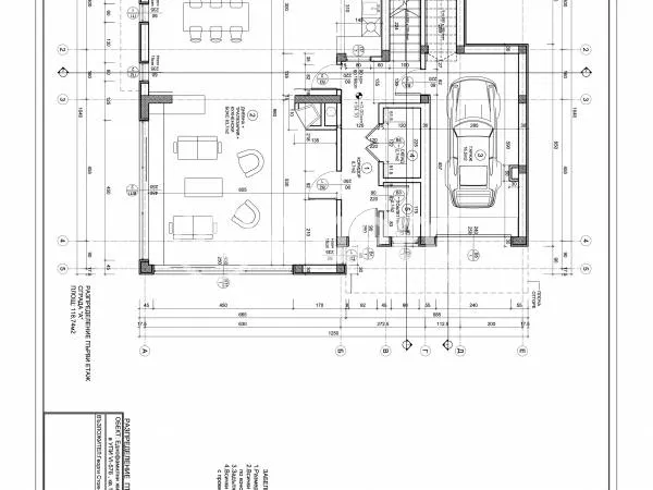
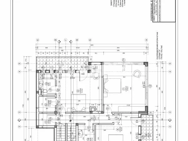
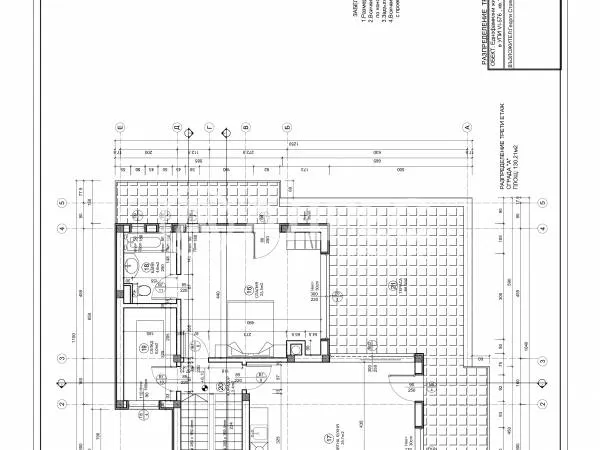
Къща на три етажа с площ 379 кв.м разпределени по следния начин: Етаж 1 - гараж, просторна дневна с трапезария и кухня, санитарен възел, помещение за бойлери. Етаж 2 - три спални едната от които със собствен санитарен възел и дрешник, втора баня с тоалетна, мокро помещение на етажа и две тераси. Етаж 3 - дневна с кухня, спалня, склад, санитарен възел и панорамна тераса. Към имота има и земя - 434,25 кв.м ид.части от общия парцел. Нова три етажна къща с Акт 16, завършена до ключ. Много добра локация в тих и спокоен район с панорамна гледка Топ цена Обади се сега и цитирай този код Z-666942

Вход
Или
Все още нямаш профил?
Създай профил
1 / 4











Къща, Ветрен, Бургас
€395,000 / 772,553 лв.
(€1,042 / 2,038 лв. / кв.м)
Характеристики
квадратура
година на строеж
Описание
Прочети още
Училища и детски градини
Детски градини
Начални
Основни
Средни
Няма намерени детски градини
Ипотечен кредитен калкулатор
Бургас Ветрен Къща
