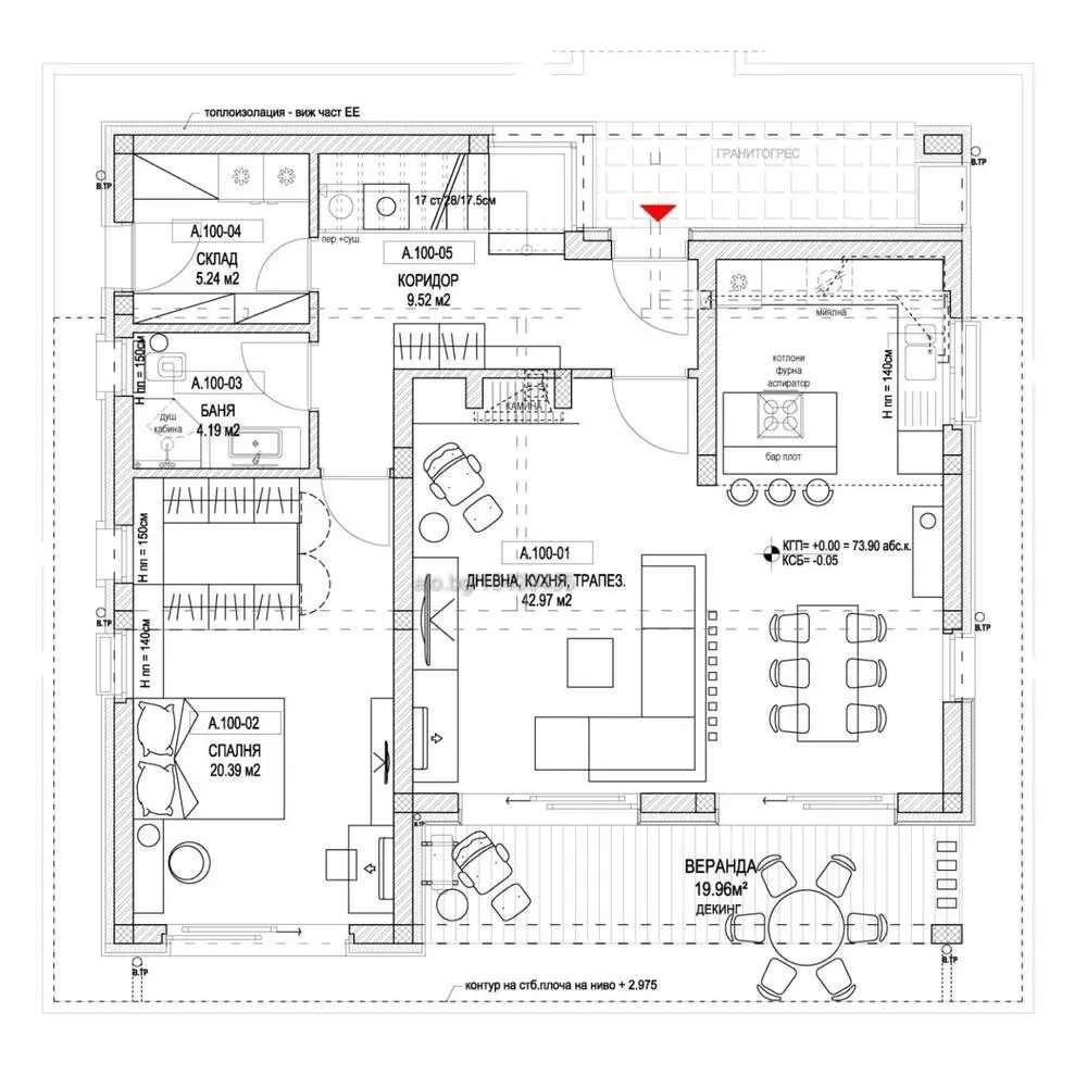
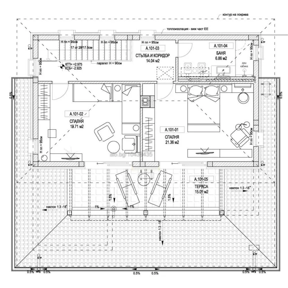
ИМОТИ ПРЕМИЕР предлага на вашето внимание за продажба къща в процес на строителство в района на кв. Банево.Акценти: УПИ 600кв.м, изложение юг-изток, канализация, три спални, две паркоместа!!!Нова регулация, в съседство над 10 бр. нови едно фамилни къщи, встрани от главният път в квартала.Група ден - 1 ЕТАЖ - приемна част - фоайе, склад, перално помещение, тоалетна, многофункционална дневна с трапезария, кухня, покрита тераса-веранда пред дневната.2 ЕТАЖ - покрита тераса, тоалетна.Група нощСпални - 1бр. с дрешник на първи етаж, 2 бр. на втори етажБани - 1бр. на първи етаж, 1 бр. на втори етажКъщата е проектирана с трискатен покрив над първи етаж и четирискатен покрив над 2 етаж;Автомобилен и пешеходен подход от север- прилежаща улица;Плащане на вноски по време на строителството и различните етапи, подписване на договор директно със собственик, издаване с разрешение за ползване(акт 16) по БДС.РЕФ.НОМЕР Z-371759

Вход


Или
Все още нямаш профил?
Създай профил
1 / 5













Къща, Банево, Бургас
€274,540 / 536,954 лв.
(€1,415 / 2,767 лв. / кв.м)
Характеристики
квадратура
Описание
Прочети още
Училища и детски градини
Детски градини
Начални
Основни
Средни
Няма намерени детски градини
Ипотечен кредитен калкулатор
Бургас Банево Къща