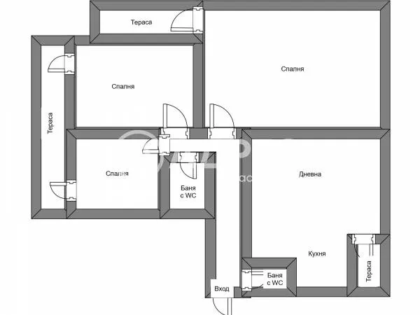
Четиристаен апартамент в идеалния център на София, на 100 метра от НДК зад баня Мадара. Жилището разполага с Хол с кухня и трапезария, три просторни спални, баня с тоалетна, отделна тоалетна, две тераси и мазе. Жилището е след основен ремонт и подменени ел. и ВиК Център, до НДК, баня Мадара, Медицинска Академия Поддържана сграда от 1980г. Локация, Метро, Етаж, Изложения Обади се сега и цитирай този код Z-672339

Вход
Или
Все още нямаш профил?
Създай профил
1 / 19









































Многостаен, Център - Запад, София
€550,000 / 1,075,707 лв.
(€4,741 / 9,273 лв. / кв.м)
Характеристики
квадратура
брой стаи
година на строеж
етаж
Описание
Прочети още
Наблизо има
В непосредствена близост се намират:
Бар
Прага 18179м
Банкомат
Fibank171м
Ресторант
The Red Rock3м
Аптека
Марешки115м
Паркинг
325м
Кафене
309м
Училища и детски градини
Детски градини
Начални
Основни
Средни
Няма намерени детски градини
Ипотечен кредитен калкулатор
София Център - Запад Многостаен апартамент
