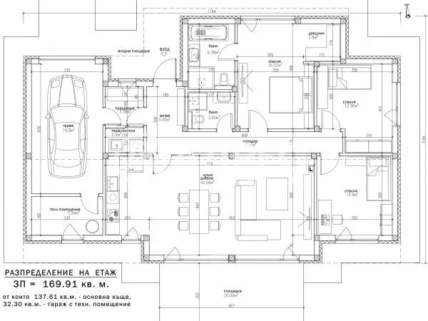
Представяме ви уникален жилищният комплекс, намиращ се в район, който съчетава чист въздух, спокойствие и усещане за свобода. Разположен е южно от град Варна , което предлага топлина и естествена светлина през цялата година – перфектната комбинация за уютен и енергийно ефективен дом. Всяка къща е ситуирана върху площ от 650м2, със самостоятелен двор, отделен от съседните къщи с жив плет от лигуструм. РЗП на едноетажната къща е 170 м2. Разпределението на имота е както следва: гараж дневна с кухненски бокс 3 спални техническо помещение предверие баня коридор антре перално помещение с. Бенковки Стратегическа локация: само на 15 минути от центъра на гр. Варна, предлагаща перфектната комбинация от спокойствие и близост до града. Новообособена територия, идеална за жилищни проекти. Южно изложение: осигуряване на естествена светлина и топла среда през цялата година. Монолитно строителство с висококачествени материали. Груб строеж: - Хидроизолация основи - Бетон основи-водоплътен бетон - Зидария - Винербергер Керамичен блок Porotherm 25см. - Покрив-керамични керемиди- цвят антрацит. - Прозорци-6 камерен профил с троен стъклопакет и вентилационни клапи - Слънцезащитни автоматични щори - Интериорна мазилка-Knauf - Подова замазка-циментова Фасада: - Каменна вата с коефициент на топлопроводимост - Минерална мазилка - Декоративна фасадна облицовка-HPL /керамика - Ел инсталация и мълниезащита - Външни ролетни щори - Веранда – Декинг или Гранитогрес ( според желанието на клиента ) Инсталации - ВиК - Пречиствателна станция без нужда от изпомпване на отпадните води през летният период-водата ще се използва за поливане и санитарни нужди. - Подготовка за система - смарт хоум - Подова топлоизолация 4 см - Електроинсталация – изцяло завършена, с двутарифен електромер и часовник; - Телефонна и интернет инсталация – изцяло завършена до изход. - Подготовка за соларни панели на покрива Район, който съчетава чист въздух, спокойствие и усещане за свобода. Само на 15 минути от центъра на гр. Варна. Висок клас на енергийна ефективност, с което ще се радвате на по-ниски сметки за електроенергия. Самостоятелен двор към всеки имот Контрол на достъпа до комплекса Улично осветлние Детска площадка Вътрешна улица и тротоари Обади се сега и цитирай този код Z-652217

Вход


Или
Все още нямаш профил?
Създай профил
1 / 11

























Къща, Бенковски, София
€215,500 / 421,481 лв.
(€1,268 / 2,480 лв. / кв.м)
Характеристики
квадратура
година на строеж
Особености на имота
- Южно изложение
- С гараж
- Детски градини
Описание
Прочети още
Наблизо има
В непосредствена близост се намират:
Бар
Оазис234м
Ресторант
Снек-бар209м
Аптека
248м
Транспорт
Най-близки спирки на градски транспорт до адреса:
Метро
Автобусни линии
Трамвайни линии
Училища и детски градини
Детски градини
Начални
Основни
Средни
Име
Адрес
Ясла
Разстояние
Ипотечен кредитен калкулатор
София Бенковски Къща