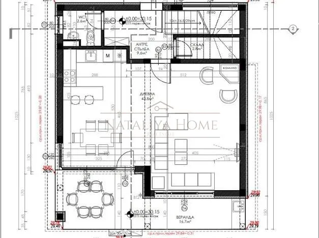
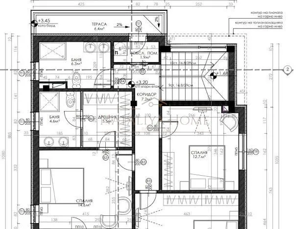
Имаме удоволствието да Ви предложим за продажба новопостроена самостоятелна двуетажна къща в малък жилищен комплекс в м. Лахана - между гр. Поморие и кв. Сарафово.Локацията е тиха и спокойна, далеч от градския шум, но в близост до всички удобства на града.Къщата е с РЗП 196 кв.м и се състои от:Етаж 1: антре, широка всекидневна с кухня и трапезария с излаз на веранда и двор, склад, баня/WC, вътрешно стълбище към втория етаж;Етаж 2: три спални, дрешник, две бани/WC и две тераси с гледка към морето и Бургаския залив.Дворът е с площ от 550 кв.м, с възможност за изграждане на басейн.Къщата се предлага на тапа, като предлагаме завършване "До ключ" с материали по избор на клиента.Разполага с паркомясто.Фасадата е с модерна и елегантна визия, изградена с висококачествени материали, висок клас топлоизолация и дограма, френски прозорци и гледка към морето.Локацията открива разкошни панорами към красивия залив на Бургас, качество и комфорт гарантирано от високото ниво на строителство и най-добрите материали вложени в създаването на Вашия луксозен дом на морето.Комплексът се състои от 7 самостоятелни къщи, които са проектирани за целогодишно живеене.Без такса поддръжка.Акт 16 се очаква до края на 2025г.

Вход
Или
Все още нямаш профил?
Създай профил
1 / 15

































Къща, Поморие, Югоизточна България
€330,000 / 645,424 лв.
(€1,684 / 3,294 лв. / кв.м)
Характеристики
квадратура
година на строеж
Описание
Прочети още
Училища и детски градини
Детски градини
Начални
Основни
Средни
Няма намерени детски градини
