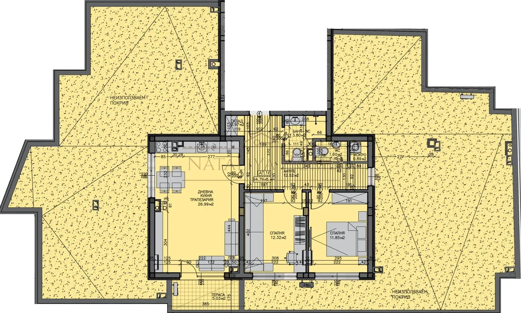
Наталия Хоум има удоволствието да Ви представи за продажба тристаен апартамент в модерна новострояща се сграда в ж.к. Зорница - гр. Бургас.Отлична Локация! На пешеходно разстояние от магазини, училища, детски градини, болница, морска градина, както и на метри от автобусни спирки и централни пътни артерии..Апартаментът е с обща площ от 111 кв.м, на пети етаж и се състои от просторна всекидневна с кухненска част, две спални, баня/WC, WC, склад, мокро помещение и тераси, две от които са с площ от 212 кв.м..Изложение: Запад.Жилището се издава до тапа, с възможност за довършване до ключ.С възможност за закупуване на паркомясто или гараж.Без такса поддръжка!Строителството стартира м. август 2025г., като срокът за завършване е 24 месеца.ДИРЕКТНО ОТ ИНВЕСТИТОРА! БЕЗ КОМИСИОНА ОТ КУПУВАЧА!

Вход


Или
Все още нямаш профил?
Създай профил
1 / 8



















3-стаен, Зорница, Бургас
€258,808 / 506,184 лв.
(€799 / 1,563 лв. / кв.м)
Характеристики
квадратура
брой стаи
година на строеж
етаж
Особености на имота
- Просторно жилище
- С гараж
- С паркомясто
- Детски градини
Описание
Прочети още
Наблизо има
В непосредствена близост се намират:
Банкомат
981м
Ресторант
612м
Аптека
734м
Паркинг
167м
Кафене
555м
Училища и детски градини
Детски градини
Начални
Основни
Средни
Име
Адрес
Ясла
Разстояние
Ипотечен кредитен калкулатор
Бургас Зорница Тристаен апартамент