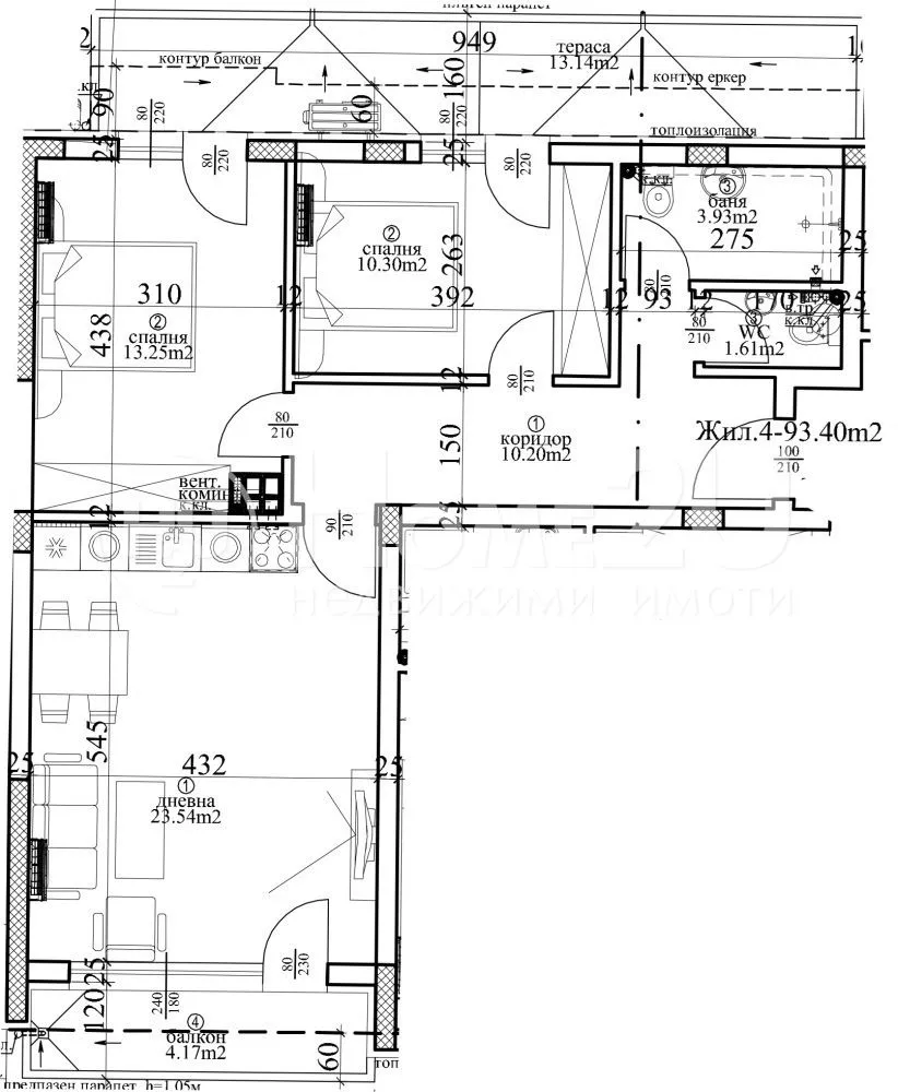
НОВА СГРАДА С АКТ16! ДОКАЗАН СТРОИТЕНА КОМПАНИЯ! ДОБРИ ПЛОЩИ!Home2U представя на Вашето внимание чудесен тристаен апартамент в нова сграда с Акт 16, като въвеждането в експлоатация се очаква до есента на тази година. Жилището е разположено на 2-ри жилищен етаж и се състои от дневна с кухненски бокс 23 кв.м. с излаз на тераса с южно изложение, две спални по 10 и 13 кв.м. с излаз към втора тераса, общо санитарно помещение баня с тоалет и отделна тоалетна, както и просторно антре.Сградата се изгражда недалеч от центъра на град Варна, като в близост са разположени множество нужни за комфортен начин на живот, учебни заведения, магазини, спирки на градския транспорт и други.За повече информация се обадете СЕГА и цитирайте Имот № 120532

Вход


Или
Все още нямаш профил?
Създай профил
1 / 5













3-стаен, Център, Варна
€250,000 / 488,958 лв.
(€1,984 / 3,880 лв. / кв.м)
Характеристики
квадратура
брой стаи
година на строеж
етаж
Описание
Прочети още
Наблизо има
В непосредствена близост се намират:
Бар
13м
Банкомат
Societe Generale Експресбанк59м
Ресторант
57м
Аптека
114м
Паркинг
169м
Кафене
79м
Училища и детски градини
Детски градини
Начални
Основни
Средни
Няма намерени детски градини
Ипотечен кредитен калкулатор
Варна Център Тристаен апартамент