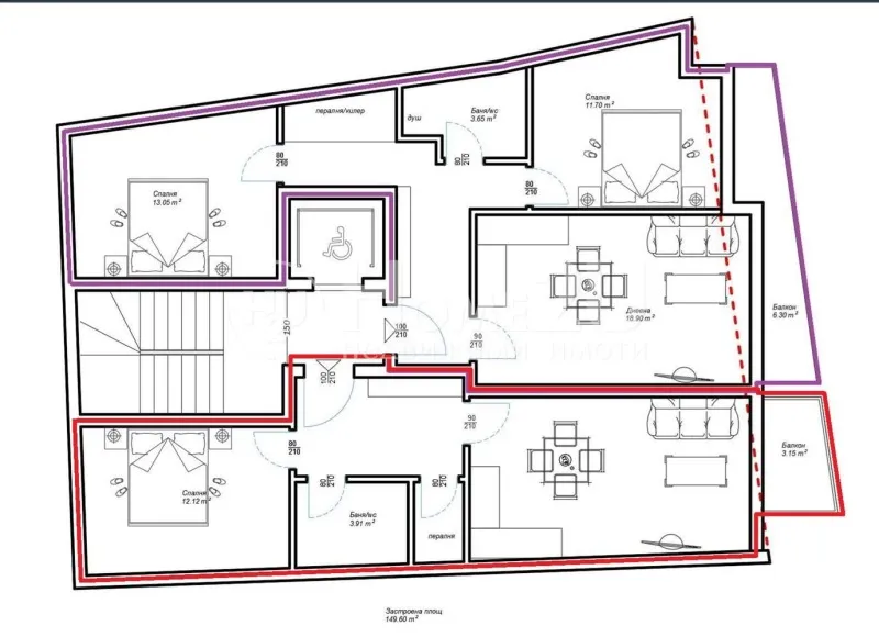
Facebook Pixel 2-стаен във Варна за 104,900€ - Zimoti
Logo