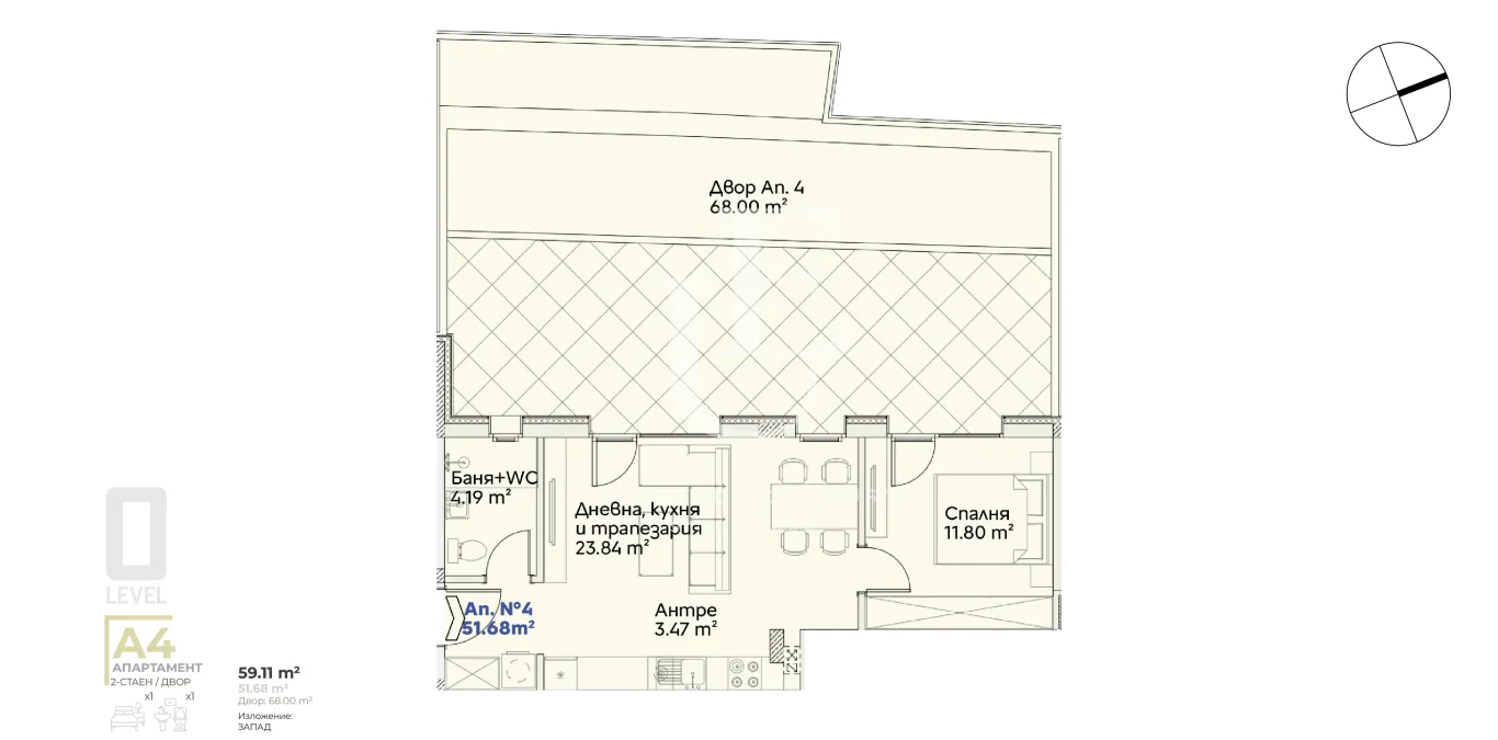
Unique Estates има удоволствието да Ви представи нова луксозна бутикова сграда, разположена в един от най-бързо развиващите се райони на столицата – Манастирски ливади – запад. Проектът съчетава стилна архитектура, високи технологии и локация с бърз достъп до центъра на града и ключова инфраструктура. Отлична възможност за инвестиция или за създаване на модерен и комфортен дом. Стилна фасада с изчистени линии и модерен дизайн и прецизно проектирани помещения, които създават усещане за свобода и простор. Френските прозорци осигуряват максимално много светлина през целия ден във всеки имот. Общите части са проектирани с внимание към естетиката – дизайнерско входно фоайе, стъклени парапети, домофонна система с видео връзка и видеонаблюдение. Проектът е дело на група утвърдени строителни предприемачи и инвеститори с богато портфолио и дългогодишен опит в жилищното строителство. Отоплението и охлаждането са решени с термопомпени системи, с възможност за подово отопление или избор на радиатори и конвектори. Срок за въвеждае в експлоатация: 12.2027г Разпределение:Апартаментът се състои от хол с трапезария и кухня, спалня, баня и тоалетна и прилежащ двор 68кв.м. Предимства:Малка бутикова сграда с високо качество на строителствоКомуникативно място и бърз достъп до центъра на градаВъзможност за покупка на паркоместа и гаражиКонтролиран достъп и 24/7 видеонаблюдение (Ref. ID:28427)

Вход
Или
Все още нямаш профил?
Създай профил
1 / 3









2-стаен, Манастирски ливади, София
€208,300 / 407,399 лв.
(€1,736 / 3,395 лв. / кв.м)
Характеристики
квадратура
брой стаи
година на строеж
Особености на имота
- С паркомясто
- Просторно жилище
- Популярен квартал
- С гараж
Описание
Прочети още
Наблизо има
В непосредствена близост се намират:
Бар
Пицария Премиум908м
Банкомат
610м
Ресторант
Виктория415м
Аптека
Стела651м
Паркинг
581м
Кафене
776м
Транспорт
Най-близки спирки на градски транспорт до адреса:
Метро
Автобусни линии
Трамвайни линии
Училища и детски градини
Детски градини
Начални
Основни
Средни
Име
Адрес
Ясла
Разстояние
Ипотечен кредитен калкулатор
София Манастирски ливади Двустаен апартамент
