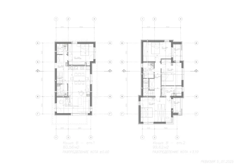
Нови самостоятелни къщи с двор - без такса поддръжка, до Борова гора и басейн с Минерална вода! Ремакс Ви предлага да станете собственик на нова двуетажна къща!Цена: от Строителя! Възможно разсрочено плащане!Представяме Ви нов комплекс ситуиран на терен с площ от 8183 кв.м., разположен в екологично чист район с лековита минерална вода, открит минерален басейн и борова гора. Благодарение на непосредствената близост -на 15 минути от Центъра на гр. Бургас, комплексът предлага идеална среда за целогодишно живеене и отдих!През първи етап от проекта е предвидено изграждането на 18 самостоятелни еднофамилни сгради. Те са планирани с три типа проекти, като всяка е разположена в собствен имот с площ от 400 до 860 кв.м. Проектирани са на два етажа и допълващо застрояване с гаражВсяка къща ще е със собствен самостоятелен двор и без такса за поддръжка!✅ Без такса поддръжка✅ Самостоятелен двор: от 400 до 860 кв.м✅ Гъвкаво плащане на вноски✅ Издаване на тапа (опция до ключ )✅ Цени директно от строителя!✅ Разрешително за строеж се очаква до месец Септември 2025г.✅ Срок за завършване: до 12 месеца след заплащане на капаро (от 5 000 до 10 000 евро)✅ 2 къщи вече са продадени и са на АКТ 14!Описание на типовете къщи:🏠 Къща Тип А - ~187 кв.мПросторна дневна с кухня и трапезария4 спални, включително основна спалня с дрешник и самостоятелна баняОбщо 3 бани с тоалетниТерасиВъзможност за кабинет или допълнително помещение🏠 Къща Тип Б - ~175 кв.мФункционално разпределение, подходящо за семейства4 спални3 бани2 терасиОтделно перално помещение🏠 Къща Тип В - ~180 кв.м + двор 400 кв.мПросторна дневна с кухня3 спални, 2 баниКабинет, дрешник и домакинско помещение2 тераси2 паркоместа📞 За оглед и допълнителна информация - свържете се с нас директно!Резервирайте своя бъдещ дом още днес - без скрити разходи и допълнителни такси!

Вход


Или
Все още нямаш профил?
Създай профил
1 / 14































Къща, Ветрен, Бургас
€290,000 / 567,191 лв.
(€1,611 / 3,151 лв. / кв.м)
Характеристики
квадратура
година на строеж
етаж
Описание
Прочети още
Училища и детски градини
Детски градини
Начални
Основни
Средни
Няма намерени детски градини
Ипотечен кредитен калкулатор
Бургас Ветрен Къща