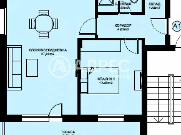
Агенция за недвижими имоти Адрес има удоволствието да Ви представи Нов проект в кв. Изгрев. Сградата се намира в затворен комплекс с ограда и контрол на достъпа. Сградата е на 4 нива: подземен паркинг, в който са рзположени и мазетата и три жилищни етажа. Рaйонът е тих и спокоен. Наблизо е бул."Пейо Яворов",осигуряващ достъп до магазини,кафета,спирки на градския транспорт,детска ясла,детска градина,VIII ОУ,плувен басейн. Предлаганият апартамент А1 на първи етаж с чиста площ от 65,65 кв.м / 69,51кв.м с общи части / и има следното разположение: антре,дневна с кухненски бокс,спалня,килер,баня с тоалетна и тераса. Към апартамента принадлежи и мазе. Степен на завършеност : подова замазка,положена фина мазилка на стените и таваните, ВиК-до тапа, Ел-до точка, PVC дограма, външна топлоизолация,монтирана входна врата,отлично завършени общи части.Идентичен апартамент има и на втори и трети жилищен етаж. Допълнително може да бъдат закупени паркоместа и гаражи в подземния паркинг на сградата. Възможност за гъвкава схема на плащане,според степента на завършеност! За повече информация относно цени и квадратури,може да се обадите на посечените телефони. Предлагаме на всички заинтересовани клиенти безплатно съдействие при кандидастване за ипотечен и потребителски кредит! Обади се сега и цитирай този код Z-674054

Вход
Или
Все още нямаш профил?
Създай профил
1 / 1









2-стаен, Широк център - север, Благоевград
€66,312 / 129,695 лв.
(€961 / 1,880 лв. / кв.м)
Характеристики
квадратура
брой стаи
година на строеж
етаж
Особености на имота
- Популярен квартал
- Затворен комплекс
- С гараж
- Детски градини
Описание
Прочети още
Наблизо има
В непосредствена близост се намират:
Бар
Bar Billiard229м
Банкомат
Алианц27м
Ресторант
The House of the Food408м
Аптека
Санита223м
Паркинг
170м
Кафене
458м
Училища и детски градини
Детски градини
Начални
Основни
Средни
Име
Адрес
Ясла
Разстояние
ЦДГ № 2 Света Богородица
без ясла
0м.
Ипотечен кредитен калкулатор
Благоевград Широк център - север Двустаен апартамент
