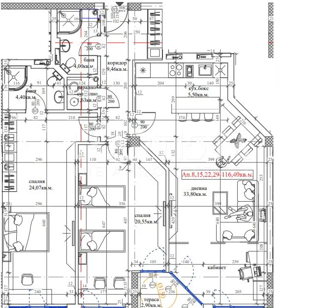
L’Artista Ви представя за продажба тристаен апартамент с обща площ 126 кв.м, от които чистата площ е 116 кв.м.Имотът се намира на 1-ви етаж.Реф. № Z-715📍 Локация:Жилището се намира в кв. Дружба 1, на ул. Тирана, в непосредствена близост до Дружбенското езеро – едно от най-зелените и предпочитани места за живеене в района. Сградата е нова, с очакван Акт 16 в началото на 2027 г.Районът се отличава с отлична инфраструктура и удобен достъп както до центъра на София, така и до Цариградско шосе и Околовръстния път. В непосредствена близост се намират:• Метростанция „Дружба“ и спирки на автобуси и трамвай, осигуряващи бърз достъп до всички части на града• Училища и детски градини, включително 148. ОУ и ДГ №113• Големи хранителни магазини – Kaufland, Lidl, Billa, както и малки квартални обекти• Аптеки, банки, заведения и зелени площи за отдих и спорт🏠 Разпределение:• Просторна дневна с кухненски бокс и кабинет с обща площ – 37,20 кв.м• Коридор – 9,46 кв.м• Баня с тоалетна – 4 кв.м• Спалня – 24,07 кв.м• Спалня – 20,55 кв.м• Тераса – 2,90 кв.м• Баня с тоалетна – 4,40 кв.м• Мокро помещение – 1,53 кв.м🚗 Паркоместа:Сградата предлага възможност за закупуване на паркоместа:• Подземни – 23 000 €• Надземни – 20 000 €Имотът впечатлява с функционално разпределение, простор и отлична локация в един от най-търсените райони на София – в близост до Езерото в Дружба 1, с прекрасен баланс между спокойствие, зеленина и удобства на градския живот. Подходящ е както за семейно жилище, така и за инвестиция.L'Artista е първата агенция в България, която предлага не само посредничество при покупко-продажба на недвижими имоти, но и широк спектър от финансови услуги - кредитиране, застраховане, инвестиционни фондове, пенсионно осигуряване и други, които осигуряват стабилност за Вашето бъдеще. Намерете всичко, от което се нуждаете за вашите имоти и финансова сигурност на едно място!

Вход
Или
Все още нямаш профил?
Създай профил
1 / 2









3-стаен, Дружба 1, София
€245,700 / 480,547 лв.
(€1,950 / 3,814 лв. / кв.м)
Характеристики
квадратура
брой стаи
година на строеж
етаж
Описание
Прочети още
Наблизо има
В непосредствена близост се намират:
Банкомат
303м
Ресторант
Еделвайс346м
Аптека
301м
Паркинг
306м
Кафене
Кафе Флай562м
Училища и детски градини
Детски градини
Начални
Основни
Средни
Няма намерени детски градини
Ипотечен кредитен калкулатор
София Дружба 1 Тристаен апартамент
