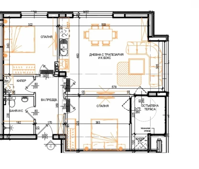
Facebook Pixel 3-стаен в Североизточна България за 86,900€ - Zimoti
Logo