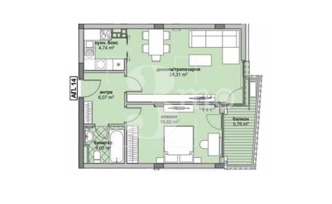
3mo Амалтея има удоволствието да Ви предложи двустаен апартамент в нова жилищна сграда в ж.к. Люлин 6. Предложеният имот е с обща площ от 82,80 кв.м. (застроена 70,48 кв.м.) и се състои от: входно антре (6,07 кв.м.), всекидневна с кухненски бокс и трапезария (29,05 кв.м.) с балкон (5,76 кв.м.), спалня (15,82 кв.м.) и санитарно помещение (4,05 кв.м.). Към имота има прилежащо складово помещение (2,70 кв.м.) на ниво сутерен. Апартаментът е разположен на трети от общо девет етажа. Има изложение изток. Жилищната сграда се намира в начален етап на строителство.
Планирано Разрешение за ползване 2026 година. Към имота може да се закупи паркомясто или гараж. Инвеститорът на проекта има дългогодишен опит в строителството на жилищни сгради в град София. В строителството използва материали от висок клас и съвременни технологии на изпълнение. Локацията на сградата е отлична. Намира се в непосредствена близост до Западен парк, което предоставя отлична възможност за организиране на ежедневни разходки в парка. От прозорците на сградата се открива красива гледка към планината Витоша. Районът има добри транспортни връзки и отлична инфраструктура.
За повече информация и организиране на огледи, моля свържете се с нас на посочените телефони!
Оферта № Z-693
3mo Амалтея, заедно с лицензирания в БНБ кредитен посредник КРЕДИТ НАВИГАТОР предоставят на своите клиенти възможност да изберат най-изгодният ипотечен кредит при закупуване на своето жилище. Услугата е БЕЗПЛАТНА.
1 / 2









2-стаен, Люлин 6, София
€124,200 / 242,914 лв.
(€1,496 / 2,926 лв. / кв.м)
Характеристики
квадратура
брой стаи
година на строеж
етаж
Вид строителство
Особености на имота
- Просторно жилище
- С гараж
- С паркомясто
- Детски градини
- В близост до парк
Описание
Прочети още
Транспорт
Най-близки спирки на градски транспорт до адреса:
Метро
Автобусни линии
Трамвайни линии
8
Училища и детски градини
Детски градини
Начални
Основни
Средни
Име
Адрес
Ясла
Разстояние
Ипотечен кредитен калкулатор
София Люлин 6 Двустаен апартамент
Зареждаме...
