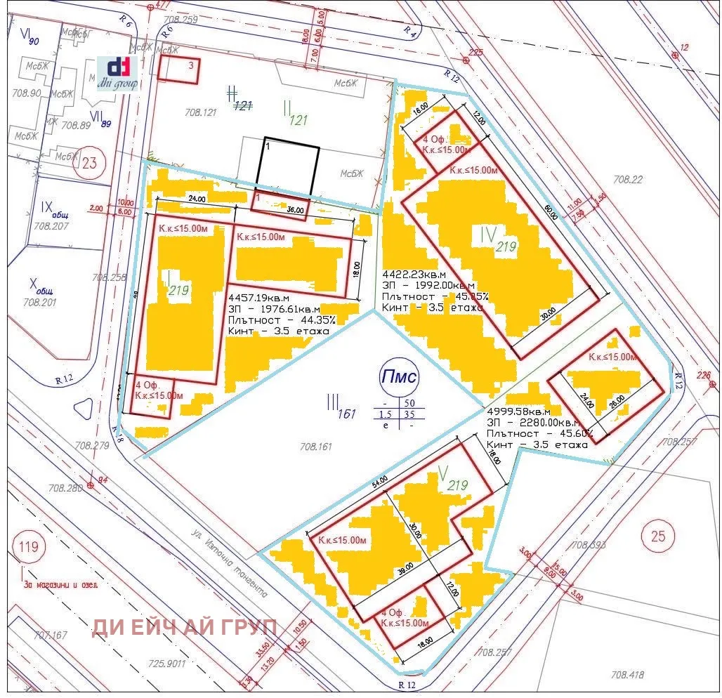
С изключителни права предлагаме за продажба УПИ с площ от 13879 кв.м., с директен достъп от ул.'Източна тангента'. В ОУП имотът попада в зона 'Пмс', с показатели на застрояване Кинт 1,5, пл.50%. Имотът е в процедура за одобряване на ПУП с максимална РЗП от 20 800 кв.м., разпределена в четири самостоятелни сгради. За имота има Решение на висша инстанция на съда и изрядни документи.
За повече информация можете да си уговорите среща в нашия офис на телефон 0888 128 326
1 / 4











Парцел, Летище София, София
€1,990,000 / 3,892,102 лв.
(€143 / 280 лв. / кв.м)
Характеристики
квадратура
Описание
Прочети още
Ипотечен кредитен калкулатор
София Летище София Парцел
Зареждаме...
