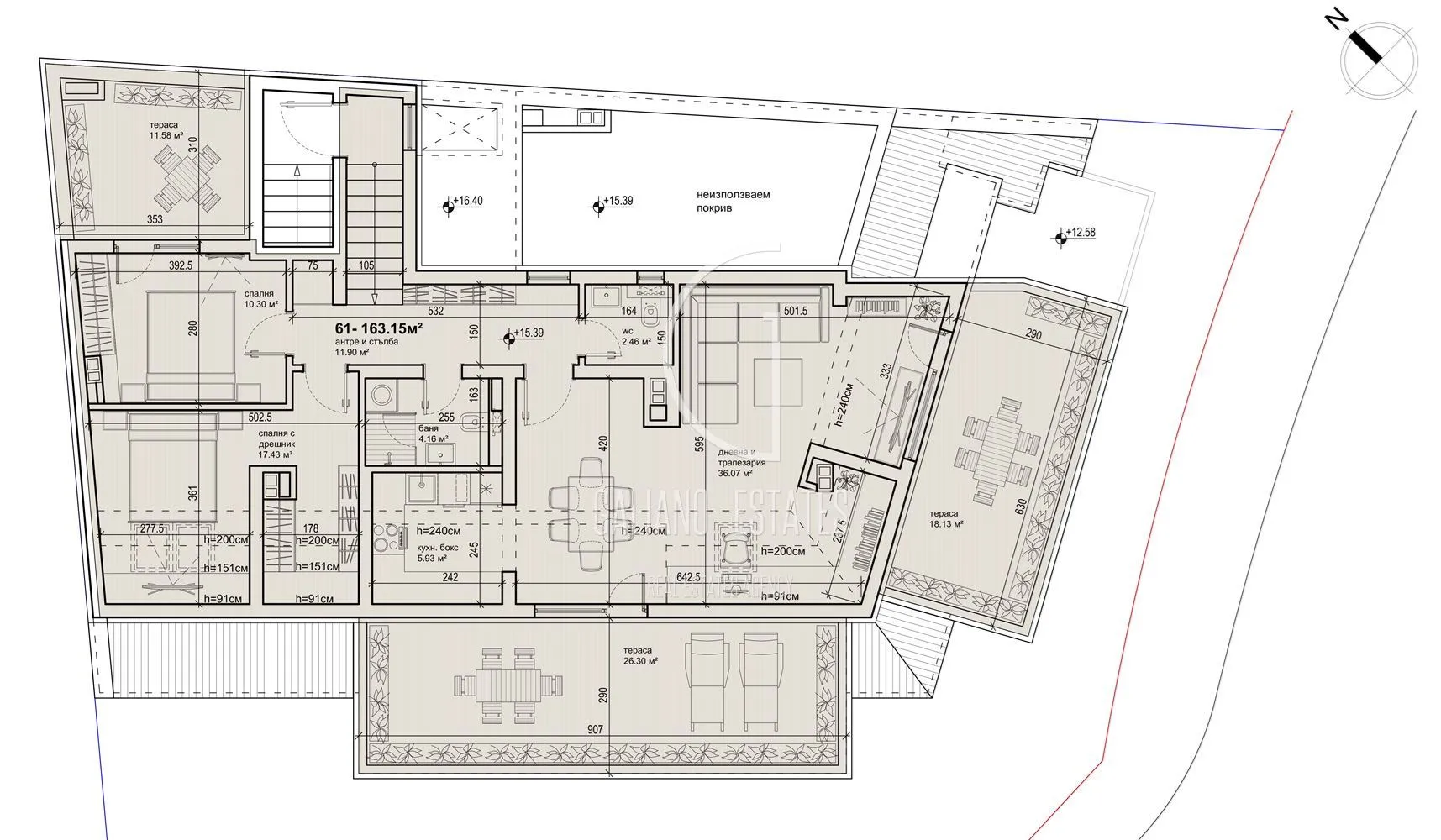
Galiano Estates има удоволствието да ви представи този многостиаен апартамент в непосредствена близост до Ловен Парк на 1 минута от бул. ГМ Димитров, същевременно без лице на булеварда, което гарантира тишина и комфорт. Сградата е с визия, вдъхновена от известни сгради в Ню Йорк, строени през 19-ти век от тухлена зидария, но е в съчетание с модерни елементи и материали.Апартаментът се намира на последен етаж и е единствен, което гарантира спокойствие и уют. Това осигурява страхотен изглед, а изложението и разпределението позволяват отлично естествено осветление през деня. Намира се в квартал с развита инфраструктура с лесен достъп до градски транспорт, магазини и зелени зони. На броени минути има магазин Фантастико, детски градини и училища, фитнес и други.Към апартамента има двоен гараж с размер 50 кв.м. със складово помещение в него и е на цена от 60,000 евро.За повече информация и организиране на оглед се свържете с Димо Георгиев на 0892257170.Оферта № 6066.
1 / 2









Многостаен, Хладилника, София
€520,000 / 1,017,032 лв.
(€2,694 / 5,269 лв. / кв.м)
Характеристики
квадратура
брой стаи
година на строеж
етаж
Особености на имота
- Просторно жилище
- Популярен квартал
- Саниран блок
- С гараж
- С паркомясто
- Детски градини
- В близост до парк
- Желан имот
Описание
Прочети още
Транспорт
Най-близки спирки на градски транспорт до адреса:
Метро
Автобусни линии
Трамвайни линии
Училища и детски градини
Детски градини
Начални
Основни
Средни
Име
Адрес
Ясла
Разстояние
Ипотечен кредитен калкулатор
София Хладилника Многостаен апартамент
Зареждаме...
