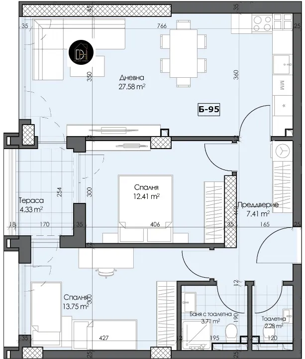
Facebook Pixel 3-стаен в Пловдив за 105,700€ - Zimoti
Logo