Титан Пропъртис има удоволствието да Ви представи новострояща се самостоятелна къща в кв. Беломорски, част от комплекс, разположен в най-новия и бързо развиващ се квартал в Пловдив - между Митница и Околовръстно шосе, с удобен вход от Кукленско шосе.
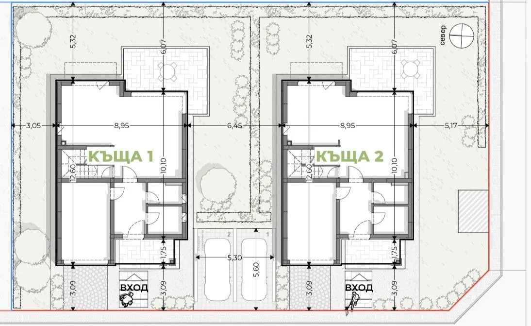
Къщата разполага с площ 220 кв.м., разгърната по следния практичен начин:
Първи етаж - входно антре, всекидневна с кухня, тоалетна, техническо помещение, покрита веранда + двор 210кв.м.
Втори етаж - коридор, три спални, едната от които с лична гардеробна с баня с тоалетна, отделна баня с тоалетна, две тераси. Към имотът има и самостоятелен гараж. Отоплението е електрическо.
Издава се на шпакловка и замазка завършена с висококачествени материали!
Проектът предстои да стартира- възползвайте се от възможността да изберете дом още в начален етап
Схеми на плащане: 10% първа копка, 10% кота 0, 5% първа плоча, 5% втора плоча, б60% акт 14, 10% АКТ 16!
За оглед на това и други атрактивни предложения, не се колебайте да ни потърсите на посочения телефон или да ни изпратите данните си чрез формата за запитване на сайта.
Референтен номер: Z-77212

Вход
Или
Все още нямаш профил?
Създай профил
1 / 6















Къща, Беломорски, Пловдив
€288,000 / 563,279 лв.
(€1,309 / 2,560 лв. / кв.м)
Характеристики
квадратура
година на строеж
Описание
Прочети още
Ипотечен кредитен калкулатор
Пловдив Беломорски Къща