Unique Estates има удоволствието да Ви представи тристаен апартамент за продажба, разположен в комплекс Морени Клуб Резиденс, в квартал Симеоново.
Комплексът предлага спокойна и защитена среда за живот, съчетаваща близостта до Витоша с удобствата на града. Озеленените пространства създават приятна атмосфера, в която децата могат да играят свободно, а жителите да се наслаждават на уют, комфорт и сигурност.
Сградата е изградена с използването на съвременни строителни технологии и висококачествени материали, които гарантират устойчивост, енергийна ефективност и висок стандарт на обитаване. Имотът е оборудван с газова отоплителна система със стенен двуконтурен котел и подово отопление, а допълнителен комфорт през всички сезони осигуряват инсталираните климатици, които подпомагат както отоплението, така и охлаждането на жилището. Големите панорамни прозорци разкриват впечатляваща гледка към Витоша и красиво озеленения вътрешен двор, като същевременно изпълват помещенията с естествена светлина.
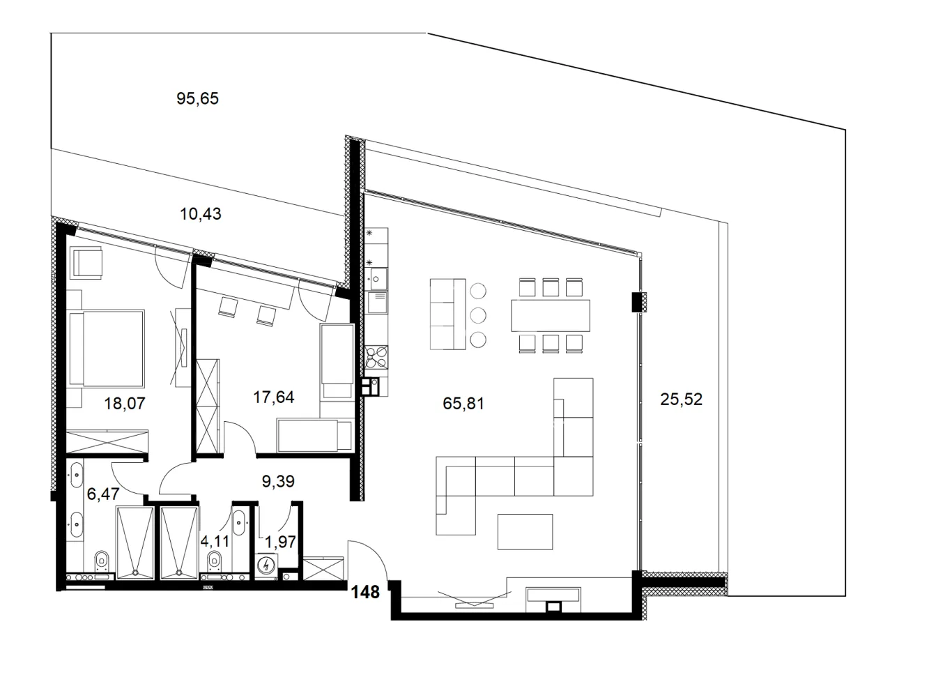
Разпределението на апартамента включва входно антре, просторна дневна зона с площ от 66 кв.м, позволяваща обособяване на кухня, трапезария и зона за релакс, две спални, две бани с тоалетна, мокро помещение, веранда и прилежащ самостоятелен двор с площ от 95.65 кв.м. Височината на таваните е 3.05 м, което създава допълнително усещане за простор и комфорт.
В цената на имота е включено и мазе. Жилището е със застроена площ от 138.02 кв.м, разполага с тераси с обща площ от 42.10 кв.м, идеални части от сградата - 15.33 кв.м и прилежащ самостоятелен двор с площ от 95.65 кв.м.
Разпределение:
Разпределението на апартамента включва входно антре, просторна дневна зона с площ от 66 кв.м, позволяваща обособяване на кухня, трапезария и зона за релакс, две спални, две бани с тоалетна, мокро помещение, веранда и прилежащ самостоятелен двор с площ от 95.65 кв.м.
Предимства:
- Комуникативно място
- Близост до голям търговски център
- Контролиран достъп, видеонаблюдение и охрана
- Красива паркова среда и много зеленина
- Много магазини и заведения
Цената е без включен ДДС (Ref. ID:28485)



