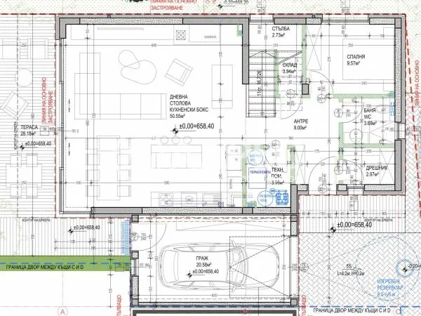
ДИРЕКТНО ОТ ИНВЕСТИТОР! 3 ЕТАЖА С ДЖАКУЗИ! ПОДОВО ОТОПЛЕНИЕ! 'МАНИЛА ХИЛС' е жилищен комплекс от затворен тип с площ от близо 2 декара и се състои от общо 6 еднофамилни жилищни сгради с РЗП около 290-320кв.м. На територията на комплекса ще бъде разположен и търговски обект. В продажба са 3 еднофамилни жилищни сгради с РЗП от 300кв.м. и самостоятелни гаражи. Всяка от къщите ще бъде с подово отопление и външно джакузи! Монолитна конструкция със стоманобетонови колони, греди и плочи. Външните стени са от тухлена зидария с керамични тухли Porotherm. Покривната конструкция е тип едноскатен или двускатен покрив. Отводняването на покрива се изпълнява от улуци и водосточни тръби. Системите за топло, хидроизолация и дограма отговарят на стандарти за енергоспестяваща къща. Подово покритие циментова замазка. Стени и тавани мазилка. Входни врати блиндирани. Положено подово отопление. Отопление термопомпа. Гараж с ролетна врата с дистанционно управление.Изградена поливна система. Комплекс от затворен тип - в ограден двор с контрол на достъпа, отлична визия и качество на материали и системи, собствен двор-градина, благоустроен и озеленен двор по ландшафтен проект. Разсрочено плащане. Къща А ЗП етаж 1-118,43кв.м, ЗП етаж 2-118,72кв.м., подпокривно -60кв.м. Къща B ЗП етаж 1-121,06кв.м., ЗП етаж 2- 118,72кв.м., подпокривно-60кв.м Къща C ЗП етаж 1-129,32кв.м., ЗП етаж 2- 117,20кв.м., подпокривно-60кв.м. Къща D ЗП етаж 1- 129,32кв.м., ЗП етаж 2-117,20кв.м, подпокривно-60кв.м. Къща Е ЗП етаж 1-129,32кв.м., ЗП етаж 2-117,20кв.м., подпокривно- 60кв.м. Обади се сега и цитирай този код Z-677002

Вход
Или
Все още нямаш профил?
Създай профил
1 / 7

















Къща, Суходол, София
€390,000 / 762,774 лв.
(€1,219 / 2,384 лв. / кв.м)
Характеристики
квадратура
година на строеж
Описание
Прочети още
Наблизо има
В непосредствена близост се намират:
Училища и детски градини
Детски градини
Начални
Основни
Средни
Няма намерени детски градини
Ипотечен кредитен калкулатор
София Суходол Къща
