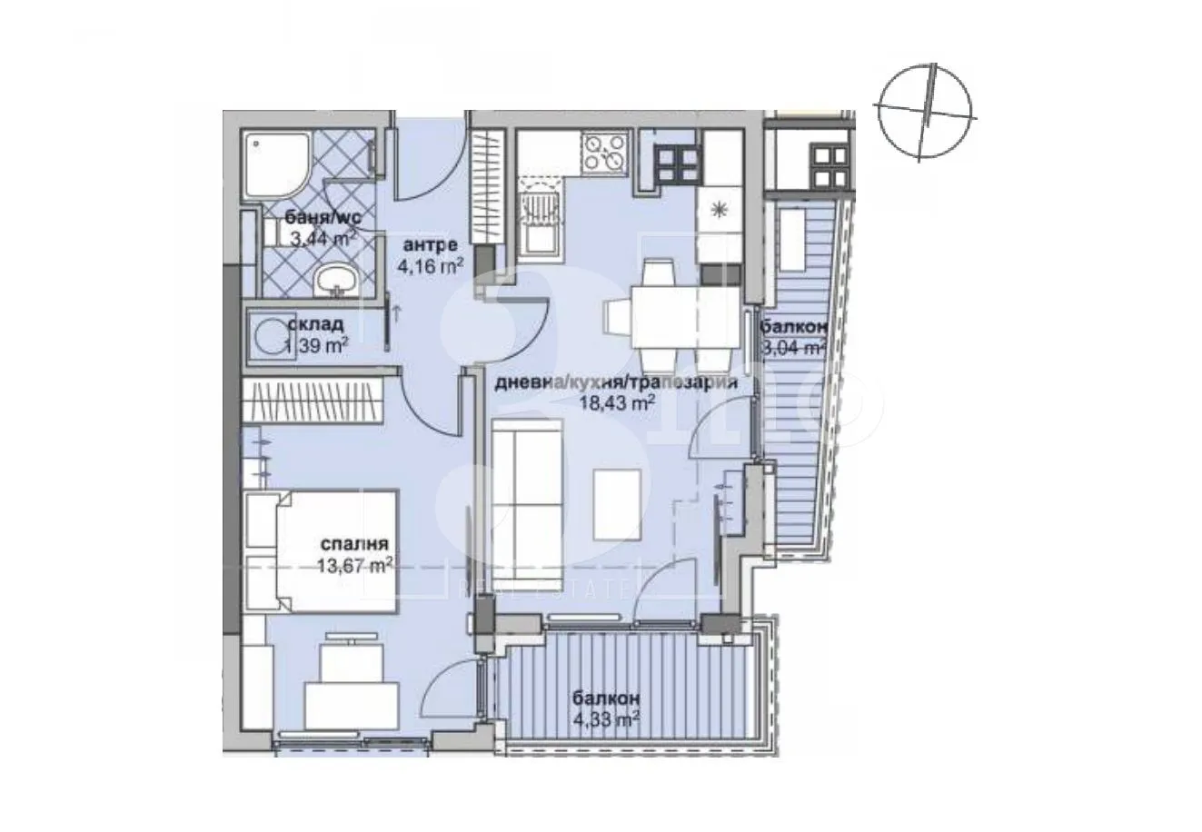
3mo Амалтея има удоволствието да ви предложи слънчев двустаен апартамент в нова жилищна сграда в ж.к. Люлин 6. Предложеният имот е с обща площ от 70,32 кв.м. (застроена 60,36 кв.м.) и се състои от: входно антре (4,16 кв.м.), всекидневна с кухненски бокс и трапезария (18,34 кв.м.) с балкон (3,04 кв.м.), южна спалня (13,67 кв.м.) с излаз на втори балкон (4,33 кв.м.), складово помещение (1,39 кв.м.) и баня с тоалетна (3,44 кв.м.).
Апартаментът е разположен на девети от общо девет етажа. Има изложение юг и изток.
Жилищната сграда се намира в начален етап на строителство. Планирано Разрешение за ползване 2026 година. Имотът е подходящ, както за живеене, така и за инвестиция. Към имота може да се закупи паркомясто или гараж.
Инвеститорът на проекта има дългогодишен опит в строителството на жилищни сгради в град София. В строителството използва материали от висок клас и съвременни технологии на изпълнение.
Локацията на сградата е отлична. Намира се в непосредствена близост до Западен парк, което предоставя много добра възможност за организиране на ежедневни разходки в парка. От прозорците на сградата се открива красива гледка към планината Витоша. Районът има добри транспортни връзки и отлична инфраструктура.
Оферта № Z-467
3mo Амалтея, заедно с лицензирания в БНБ кредитен посредник КРЕДИТ НАВИГАТОР предоставят на своите клиенти възможност да изберат най-изгодния ипотечен кредит при закупуване на своето жилище. Услугата е БЕЗПЛАТНА.
1 / 2









2-стаен, Люлин 6, София
€101,964 / 199,424 лв.
(€1,457 / 2,850 лв. / кв.м)
Характеристики
квадратура
брой стаи
година на строеж
етаж
Вид строителство
Особености на имота
- Саниран блок
- С гараж
- С паркомясто
- Желан имот
- Последен етаж
Описание
Прочети още
Ипотечен кредитен калкулатор
София Люлин 6 Двустаен апартамент
Зареждаме...
