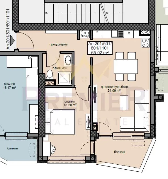
Имоти Премиер представя модерен 2-стаен апартамент с отлична локация в кв. Братя Миладинови, гр. Бургас Имаме удоволствието да Ви представим този отличен имот – двустаен апартамент с обща площ 77.77 кв.м., разположен в нова жилищна сграда с асансьор. Планирано въвеждане в експлоатация: 2028 г. Ново строителство, съчетаващо функционалност, комфорт и съвременен дизайн.Имотът впечатлява с оптимално разпределение и светли помещения, подходящ за първи дом или инвестиция с отлична възвращаемост.Състои се от:• Светла дневна с място за кухненски кът и трапезария • Комфортна спалня • Баня с тоалетна • Предвидени складови и сервизни зони в рамките на жилището/етажа • Сграда с асансьор и качествени общи частиПредимства на имота:• Общa площ: 77.77 кв.м. • Ново строителство (2028 г.) • Търсена локация в кв. Братя Миладинови, гр. Бургас • Цена: 132 209 € • Подходящ както за лично ползване, така и за дългосрочна или краткосрочна отдаване под наемИмотът е разположен в район с развита инфраструктура, удобен градски транспорт и бърз достъп до центъра на града. Наблизо ще откриете търговски обекти, учебни заведения, медицински услуги и зелени площи за отдих.Перфектен избор за купувачи, които ценят практичната локация, новото строителство и удобствата на модерната градска среда.Не просто апартамент, а сигурна инвестиция и уютен дом в Бургас.Квартал Братя Миладинови е динамичен и добре устроен район, предпочитан заради близостта си до центъра и множеството ежедневни удобства. Отличната транспортна свързаност и богатият избор от услуги го правят практично място за живеене и инвестиция.КОД НА ОФЕРТАТА: Z-377576

Вход
Или
Все още нямаш профил?
Създай профил
1 / 8



















2-стаен, Братя Миладинови, Бургас
€132,209 / 258,578 лв.
(€1,695 / 3,315 лв. / кв.м)
Характеристики
квадратура
брой стаи
година на строеж
етаж
Особености на имота
- Просторно жилище
- Популярен квартал
- Детски градини
Описание
Прочети още
Наблизо има
В непосредствена близост се намират:
Бар
Taboo club469м
Банкомат
266м
Ресторант
Люти Чушки314м
Аптека
Фаркол442м
Паркинг
320м
Кафене
680м
Училища и детски градини
Детски градини
Начални
Основни
Средни
Име
Адрес
Ясла
Разстояние
Детска градина "Х.К. Андерсен", филиал ул. В. Петлешев 1 (до бл. 20)
без ясла
328м.
Ипотечен кредитен калкулатор
Бургас Братя Миладинови Двустаен апартамент
