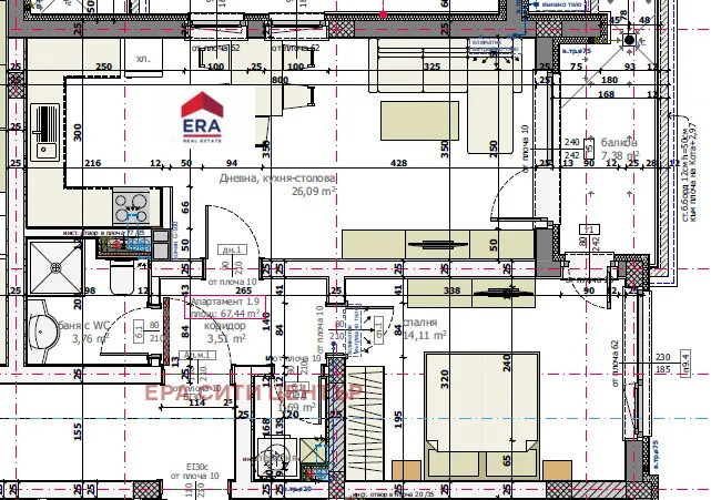
БЕЗ КОМИСИОННА !!!ЕРА СИТИ ЦЕНТЪР продава двустаен апартамент за продажба с Акт 14 в района на Бедечка.Състои се от просторна дневна ,спалня , склад, санитарно помещение и балкон .С опция за закупуване на гаражГъвкави схеми на плащанеЦенa: 100 800 eвроЗа повече информация : 0888455138

Вход
Или
Все още нямаш профил?
Създай профил
1 / 1









2-стаен, Бедечка, Стара Загора
€100,800 / 197,148 лв.
(€1,200 / 2,347 лв. / кв.м)
Характеристики
квадратура
брой стаи
етаж
Описание
Прочети още
Наблизо има
В непосредствена близост се намират:
Банкомат
International Asset Bank623м
Ресторант
Next Escape431м
Аптека
Марешки713м
Кафене
566м
Училища и детски градини
Детски градини
Начални
Основни
Средни
Няма намерени детски градини
Ипотечен кредитен калкулатор
Стара Загора Бедечка Двустаен апартамент
