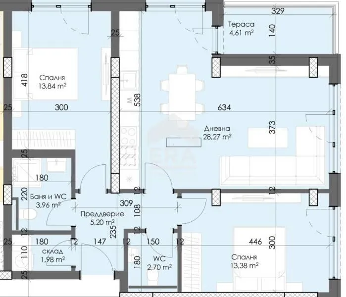
Оферта 5801473ГЪВКАВИ СХЕМИ НА ПЛАЩАНЕ!ЕРА Вива предлага просторен тристаен апартамент в новострояща се луксозна сграда в кв. Тракия. Жилището се състои от: преддверие, дневна с трапезария и кухненски бокс, спалня, втора спалня, баня с тоалетна, втора тоалетна, склад и тераса. Апартаментът се издава на: стени шпакловка, под - замазка, изградена ВиК, ел. инсталация с монтирани ключове, контакти и ел. табла, окабеляване за телефон и интернет. Предимства на имота: - Просторни помещения, правилни форми и оптимално разпределение на застроената площ;- Качествено строителство от доказан изпълнител;- Нисък процент общи части; - Стилна, красива архитектура;- Луксозни общи части и фасади;- Панорамни гледки; - Осигурено 100% паркиране на добра цена;- Прекрасна паркова среда.Отлично местоположение, в близост до парк Лаута, множество търговски обекти, училища, детски градини, спирки на градски транспорт. Имотът е част от нова, луксозна сграда, която се намира на спокойно и тихо място, и в същото време урбанизирано с лесен и асфалтиран достъп. Ситуиран е встрани от натоварения трафик, но същевременно с бърз достъп до главни пътни артерии. Нов проект на доказан инвеститор с дългогодишен опит и отлична репутация.Жилището е чудесна покупка, както за живеене, така и за отдаване под наем.Инвестицията в недвижим имот е най- сигурният начин да съхраним парите си от инфлационно обезценяване. ЕРА България е регистриран кредитен посредник към БНБ и предоставя безплатна консултация и съдействие за най-изгодни условия спрямо вашия профил и желание при финансиране на избрания от Вас имот.Оферта 5801473

Вход
Или
Все още нямаш профил?
Създай профил
1 / 2









3-стаен, Тракия - Запад, Пловдив
€106,359 / 208,020 лв.
(€985 / 1,926 лв. / кв.м)
Характеристики
квадратура
брой стаи
година на строеж
етаж
Особености на имота
- Достъпно с градски транспорт
- Детски градини
Описание
Прочети още
Наблизо има
В непосредствена близост се намират:
Банкомат
ДСК531м
Ресторант
216м
Аптека
36.6189м
Паркинг
550м
Кафене
Chill Out66м
Транспорт
Най-близки спирки на градски транспорт до адреса:
Метро
Автобусни линии
25
29
66
9
10
17
21
93
25
29
66
9
10
17
21
93
25
29
66
9
10
17
21
93
25
29
66
9
10
17
21
93
Трамвайни линии
Училища и детски градини
Детски градини
Начални
Основни
Средни
Име
Адрес
Ясла
Разстояние
Ипотечен кредитен калкулатор
Пловдив Тракия - Запад Тристаен апартамент
