ПРЕД АКТ 14! БЕЗ КОМИСИОН! ДО МЕТРОСТАНЦИЯ!
Ако Вие търсите да купите имот от инвеститор с дългогодишен опит на пазара, множество сгради с акт 16, безупречна репутация! Намерихте го!
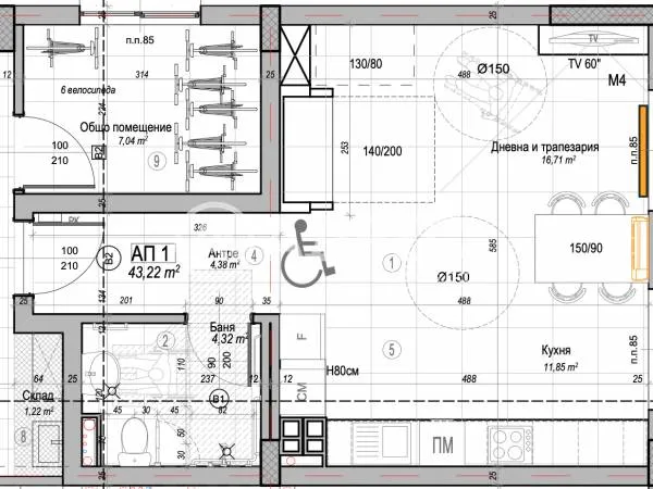
ТИТАНИУМ РЕЗИДЕНС предствалява единствената в квартала от подобен клас!
Местоположението на сградата е изключително удобно в непосредствена близост до спирки на градски транспорт, магазини и супермаркети, училища и детски градини. Районът е добре устроен с множество зелени междублокови пространства и поддържана среда за живеене. Локацията осигурява бърз достъп до основни булеварди като Шипченски проход и Цариградско шосе , което позволява лесно и удобно придвижване до всички части на града. Намира се до известната сладкарница "Неделя"
Жилищната кооперация е изпъкваща сред сградите в района с иновативен дизайн, модерна фасада и перфектни архитектурни решения. Ще предостави комфорт за бъдещите си собственици и всички необходими удобства за днешния градски живот. При изграждането на проекта ще бъдат използвани висококачествени материали и технологии.
Сградата е в доста напреднал етап, като ще има акт 16 до края на 2027г.
Безкомпромисно строителство
Локация
Обади се сега и цитирай този код Z-677912


