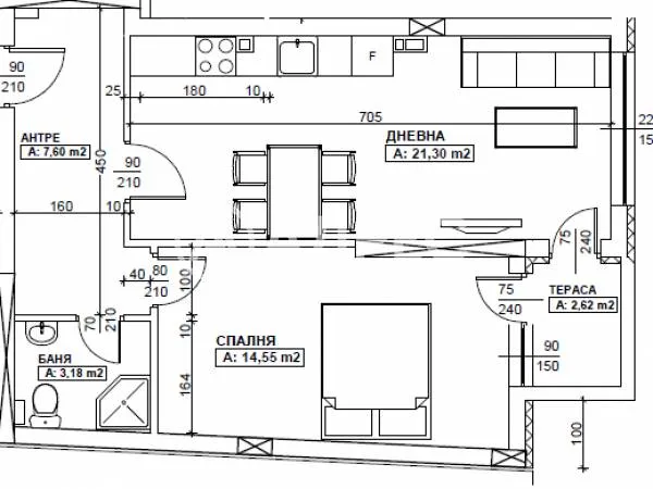
Агенция Адрес предлага на Вашетовнимание двустаен апартамент в новострояща сграда в квартал Еленово за продажба. Апартаментът е с площ от 66.2 кв.м. (57.60 кв.м. чиста площ и 8.60 кв.м. общи части). Намира се на кота +2.85 на първи етаж от пететажна кооперация. Състои се от коридор, спалня, всекидневна с кухня, баня с тоалетна и тераса.
Местоположението на имота е отлично, тъй като се намира на тихо и спокойно място, в близостдо хранителни и нехранителни магазини, детски площадки, училище, спортен комплекс, градски транспорт и много други.
Към апартамента е включено и мазе.
Цената е без ДДС.
1 / 1









2-стаен, Еленово, Благоевград
€60,900 / 119,110 лв.
(€920 / 1,799 лв. / кв.м)
Характеристики
квадратура
брой стаи
година на строеж
етаж
Особености на имота
- Първи етаж
Описание
Прочети още
Ипотечен кредитен калкулатор
Благоевград Еленово Двустаен апартамент
Зареждаме...
