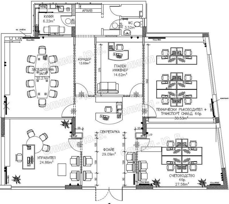
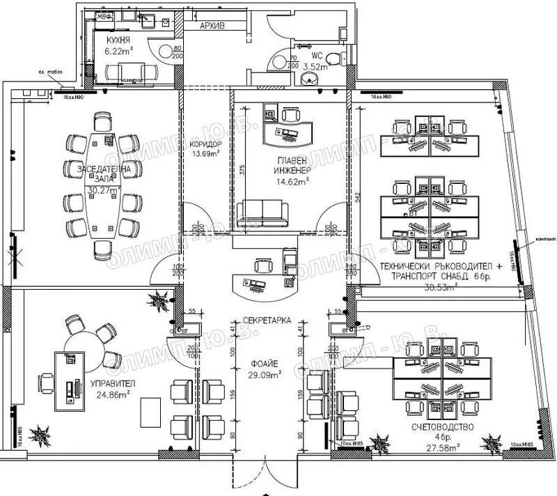
Луксозно завършен офис, в модерна тухлена сграда от 2009 г. Намира се на 100 м. от бул. 'Симеоновско шосе', близо до посолствата. Мястото е комуникативно и същевременно много тихо и спокойно. Състои се от фоайе /приемна/ 29 кв.м, 5 зали/кабинети/ 31 кв.м, 30 кв.м, 28 кв.м, 25 кв.м и 15 кв.м, кухня 6 кв.м, коридор, склад и тоалетна. Височината е 3,20 м. Завършен е луксозно с италиянски полиран гранитогрес, стени на латекс, окачени тавани с вградено осветление, цветна ПВЦ дограма с к-съкло. Отоплението е на газ. Има климатик, СОТ, и пълно окабеляване. Цената е без включено ДДС. В офиса има дългосрочни наематели и е мого подходящ за инвестиция. За повече информация и огледи: Захари Цветков- 0882 599 944

Вход


Или
Все още нямаш профил?
Създай профил
1 / 11

























Офис, Студентски град, София
€401,680 / 785,618 лв.
(€1,594 / 3,118 лв. / кв.м)
Характеристики
квадратура
година на строеж
Особености на имота
- Детски градини
Описание
Прочети още
Наблизо има
В непосредствена близост се намират:
Бар
Joy Station363м
Банкомат
248м
Ресторант
Миленката514м
Аптека
Марешки382м
Паркинг
321м
Кафене
394м
Транспорт
Най-близки спирки на градски транспорт до адреса:
Метро
Автобусни линии
Трамвайни линии
Училища и детски градини
Детски градини
Начални
Основни
Средни
Име
Адрес
Ясла
Разстояние
Ипотечен кредитен калкулатор
София Студентски град Офис