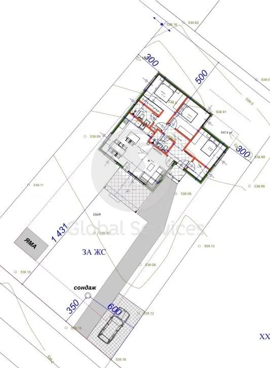
Facebook Pixel Парцел в Югозападна България за 150,000€ - Zimoti
Logo